Routine maintenance, Routine maintenance: -3, Maintenance – Servis-Rhino RC-12 User Manual
Page 83

MAINTENANCE
RC12 12/05
Maintenance Section 5-3
© 2004 Alamo Group Inc.
MAINTENANCE
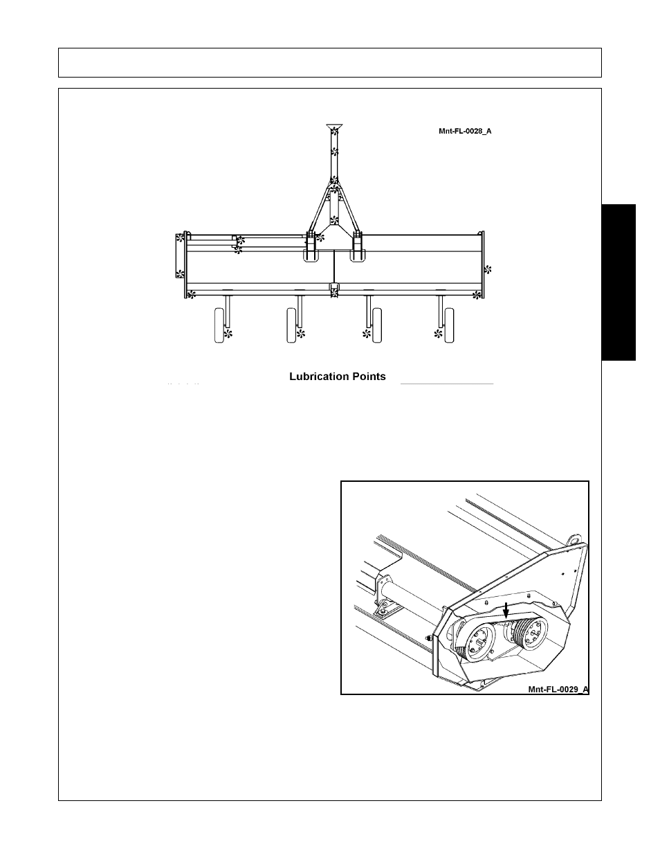
To lubricate telescoping section of driveline, disconnect yoke from tractor and compress driveline until both
slots on shields are aligned and grease fitting is exposed. Lubricate both u-joints before re-attaching to tractor.
Inspect shields to ensure they rotate freely, replace bearings or shield if damaged.
ROUTINE MAINTENANCE:
Inspect belt drive for correct tension and remove any
debris from inside belt shields. Incorrect tension will
result in premature belt failure. Check belt tension after
first hour of operation. Mnt-FL-0029_A.
Inspect for and tighten any loose fasteners.
Routinely inspect cutter shaft for missing or worn
knives. Replace knives as outlined in Blade
Replacement Procedure, Maintenance Section, page
5-4.
Clear any debris from gear box area, to prevent
overheating. Clean area around breather plug regularly.
Always ensure all hitch pins and clips are locked in
place before operation.
Inspect bearing assemblies to ensure locking collars
are locked in place. See Section 4.4.1 for locking
procedure.
All shielding must be in place before operating
shredder. Inspect front rubber shield for wear and
replace if necessary.
