Voltooiing van de installatie controleren, De tv verwijderen, Specificaties – Sony SU-WL100 EU User Manual
Page 61: De tv verwijderen 1

11
(NL)
Ontwerp en specificaties zijn onderhevig aan wijzigingen
zonder voorafgaande kennisgeving.
Voltooiing van de
installatie controleren
Controleer de volgende punten.
• De haken van de montagehaak zijn stevig
vastgeklikt in de gaten van de basisplaat.
• Het snoer en de kabel zijn niet ineengedraaid en
zitten niet bekneld.
• De twee schroeven die de montagehaak en de
basisplaat bevestigen zijn stevig vastgedraaid.
WAARSCHUWING
Pas de hoek van de montagehaak niet aan wanneer de tv
aan de muur is vastgemaakt en zorg ervoor dat u alles
volledig installeert. Onvolledige installatie kan ervoor
zorgen dat het product valt en kan leiden tot
verwondingen of beschadiging van het product. Ook kan
onjuiste plaatsing van het netsnoer, enz. brand of een
elektrische schok door kortsluiting veroorzaken.
Controleer de voltooiing van de installatie om
veiligheidsredenen.
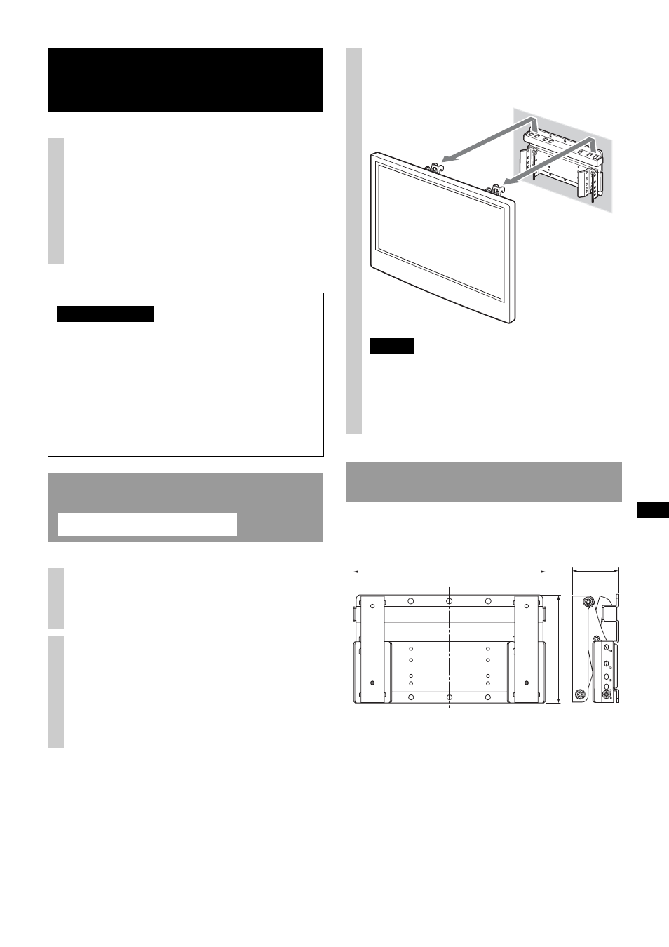
De tv verwijderen
1
Haal het netsnoer uit de
wandcontactdoos.
2
Verwijder de twee schroeven die
de tv en de basisplaat
bevestigen. (Raadpleeg punt 3
van stap 6 op pagina 10 voor de
posities van de schroeven.)
Voor Sony-handelaars
3
Houd de tv vast en schuif hem
omhoog om hem te verwijderen.
Specificaties
LET OP
• Let erop dat snoeren en kabels niet geklemd komen
te zitten tijdens het verwijderen van de tv.
• Pas op dat u uw handen of vingers niet bezeert
tijdens het verwijderen van de tv.
Eenheid: mm
Gewicht: 1,2 kg
250
60
140