Planificación del sistema de ventilación – Maytag ELECTRIC DYER User Manual
Page 41

41
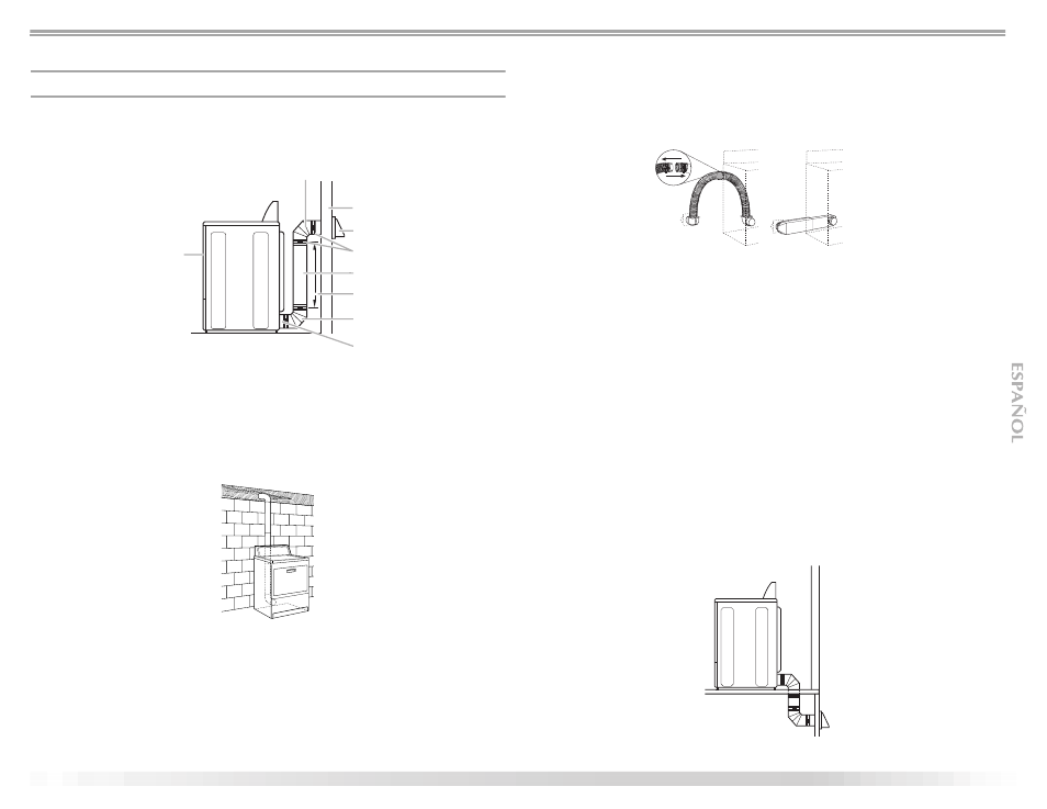
PLANIFICACIÓN DEL SISTEMA DE VENTILACIÓN
Seleccione su tipo de instalación de ventilación
Instalaciones recomendadas de escape
Las instalaciones típicas tienen la ventilación en la parte posterior de la secadora. Otras
instalaciones son posibles.
Instalación con salida de ventilación estándar con ducto de escape de metal rígido
o flexible
Instalaciones alternas para espacios limitados
Los sistemas de ventilación vienen en una amplia gama. Seleccione el tipo más apropiado
para su instalación. A continuación se ilustran dos tipos de instalación para espacios
limitados. Consulte las instrucciones del fabricante.
NOTA: Se pueden adquirir los siguientes juegos para instalaciones alternas en espacios
limitados. Para pedir las piezas, sírvase referirse a la sección “Ayuda o servicio técnico” de
este manual.
■
Instalación en la parte superior:
Pieza número 4396028
■
Instalación de periscopio (Para usar si hay desacoplo entre el ducto de escape de la pared
y el conducto de ventilación de la secadora):
Pieza número 4396037 - Desacoplo de 0" (0 cm) a 18" (45,72 cm).
Pieza número 4396011 - Desacoplo de 18" (45,72 cm) a 29" (73,66 cm).
Pieza número 4396014 - Desacoplo de 29" (73,66 cm) a 50" (127 cm).
Previsiones especiales para las instalaciones en casas rodantes
El ducto de escape deberá sujetarse firmemente en un lugar no inflamable de la estructura de
la casa rodante y no debe terminar debajo de la casa rodante. El ducto de escape debe
terminar en el exterior.
A. Secadora
B. Codo
C. Pared
D. Capota de ventilación
E. Abrazaderas
F. Ducto de metal rígido o de metal flexible
G. Longitud necesaria del ducto de escape
para conectar los codos
H. Salida de ventilación
A
B
B
C
D
E
F
G
H
A. Instalación en la parte superior (también está
disponible con un codo de desviación)
B. Instalación de periscopio
A
B