Directory
Brands
GE manuals
Dryers
DCVH515
Manual

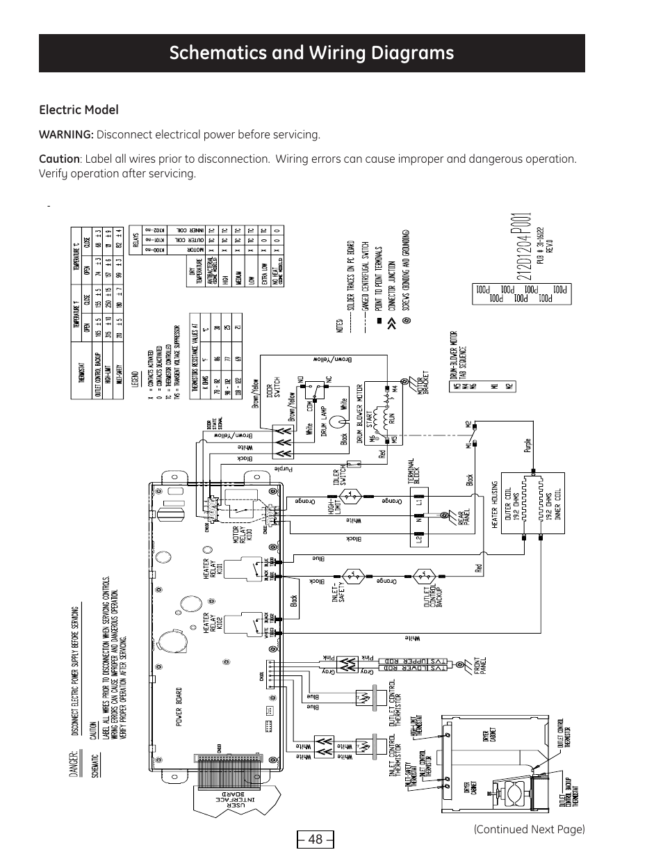
Schematics and wiring diagrams, Service test mode – GE DCVH515 User Manual

Page 48

  • Text mode
  • Original mode
Schematics and wiring diagrams, Service test mode | GE DCVH515 User Manual | Page 48 / 50 Schematics and wiring diagrams, Service test mode | GE DCVH515 User Manual | Page 48 / 50
Pages: 1 … 45 46 47 48 49 50
  • wrong Brand
  • wrong Model
  • non readable
This manual is related to the following products:
  • DHDVH52
See also other documents in the category GE Dryers:
  • DBVH510GHWW (4 pages)
  • DBXR453 (23 pages)
  • DCCB330 (3 pages)
  • DDG4580G (15 pages)
  • DCCD330 (12 pages)
  • 234D1050P001 (56 pages)
  • 453 (16 pages)
  • WPDH8800 (12 pages)
  • DDC4400T (3 pages)
  • DCCH43GF (3 pages)
  • DBLR453GT (24 pages)
  • PFMN440 (156 pages)
  • DCCB330GDKC (3 pages)
  • DCVH680GJMV (4 pages)
  • DBXR453GAWW (3 pages)
  • DCVH680GJBB (56 pages)
  • EGD4500 (32 pages)
  • DRSR495 (16 pages)
  • 49-90418 (32 pages)
  • 234D1157P003 (32 pages)
  • DCSR483 (16 pages)
  • DBXR463GGCC (3 pages)
  • DCCB330EJ (3 pages)
  • DPGT750GCPL (3 pages)
  • UPSQ495GT (74 pages)
  • Profile 513 (48 pages)
  • DNCK440GA (3 pages)
  • DLSR483EEWW (8 pages)
  • DCCB330EDWC (3 pages)
  • DLSR483EGWW (3 pages)
  • 106588 (18 pages)
  • DDE5300G (16 pages)
  • 473 (16 pages)
  • DCB330E (20 pages)
  • UPVH890 (152 pages)
  • 3300 (20 pages)
  • DHDVH66 (56 pages)
  • DCCB330GGWC (3 pages)
  • DMCD330GHWC (3 pages)
  • DWSR483 (16 pages)
  • EED4500 (16 pages)
  • 234D1157P002 (32 pages)
  • 175D1807P596 (16 pages)
  • DCCB330GJWC (3 pages)
  • DPGT750EC (3 pages)
Home Brands Popular manuals Recently added
Manuals Directory

© 2012–2025, azmanual.top
All rights reserved.