World class 3000, Instruction manual, A- a – Emerson WORLD CLASS 3000 User Manual
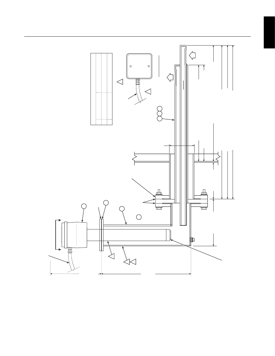
Page 43: Figure a-13. bypass probe option (sheet 1 of 3) a

Instruction Manual
Appendix A Rev. 3.6
July 1998
Rosemount Analytical Inc. A Division of Emerson Process Management
Appendices A-9
World Class 3000
06
GASKET
AND
HARDW
ARE
6.50
(165.1)
REF
DRAIN
A
A
STD
20
FT
(6.1
M)
CABLE
27.31
(693.67)
CLEARANCE
REQ
FOR
P
ROBE
INSER
TION
AND
REMOV
AL
FLANGE
06
01
02
03
04
05
GASKET
AND
H
ARDW
ARE
4
3
6
19.80
(502.92)
FOR
3D3947G01
6.0
(152.4)
REF
62.50
(1587.5)
REF
(4507C26G03)
26.50
(673.1)
REF
(4507C26G01
AND
G02)
30.62
(777.75)
REF
(4507C26G01)
73.00
(1854.2)
REF
(4507C26G02)
109.00
(2768.6)
REF
(4507C26G03)
37.00
(939.8)
REF
(4507C26G01)
DIRECTION OF
FLOW
OPTIONAL
MOUNTING
ARRANGEMENT
,
4
IN.
150#
FLANGE
S
UPPLIED
BY
CUST
OMER
NOTES:
REFERENCE
AIR
SUPPL
Y
CONNECTION
BITE
TYPE
FITTING
(P
ARKER
CPI)
FOR
0.250
O.D.
TUBING.
2
SCFH
AT
3
PSIG
MAX.
CLEAN
DR
Y
A
IR
REQUIRED.
FITTING
IS
LOCA
TED
ON
FAR
SIDE.
LAG
TO
ENSURE
GAS
TEMPERA
TURE
DOES
NOT
GO
BELOW
DEW
POINT
OR
EXCEED
500
C.
o
INST
ALL
WITH
ANAL
YZER
IN
A
VER
TICALL
Y
DOWNW
ARDS
DIRECTION
ONL
Y.
FLUE
GAS
OPERA
TING
TEMPERA
TURE
RANGE
1200
TO
1800
F
(650
TO
980
C).
oo
o
o
RECOMMENDED
TWO
INCH
THK
INSULA
TION.
THERMAL
CONDUCTIVITY
K
EQUALS
0.5
FOR
INSULA
TION.
DIMENSIONS
ARE
IN
INCHES
WITH
MILLIMETERS
IN
PARENTHESES.
1.
2.
3.
4.
5.
6.
7.
4.026 (102.26)
I.D.
2
1
REF AIR
CAL GAS
ELECT
CABLE
VIEW
A-
A
GROUP
NOTE
A
3
FT
(914.4)
GAS
TUBE
PICK-UP
B6
FT
(1828.8)
GAS
TUBE
PICK-UP
C9
FT
(2743.2)
GAS
TUBE
P
ICK-UP
CALIBRA
TION
AND
PURGE
GAS
CONNECTION.
BITE
TYPE
FITTING
(P
ARKER
CPI)
10
SCFH
AT
32
PSIG
MAX.
CALIBRA
TION
GAS
REQUIRED.
IF
EQUIPPED
WITH
THE
OPTIONAL
CERAMIC
D
IFFUSOR
ASSEMBL
Y,
PROBE
ASSEMBL
Y
M
UST
BE
ORIENTED
SO
THA
T
VEE
SHIELD
IS
SQUARE
TO
G
AS
FLOW
.
27270017
Figure A-13. Bypass Probe Option (Sheet 1 of 3)
A