Search
Directory
Brands
Emerson manuals
Health and hygiene
WORLD CLASS 3000
Manual
World class 3000, Instruction manual, A- a – Emerson WORLD CLASS 3000 User Manual
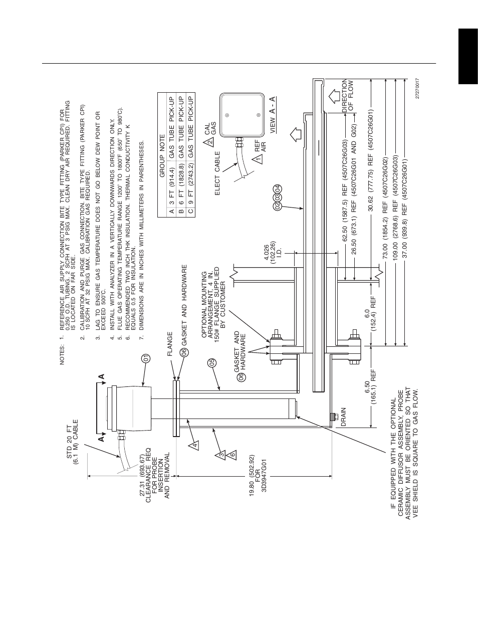
Page 43: Figure a-13. bypass probe option (sheet 1 of 3) a
Text mode
Original mode
World class 3000, Instruction manual, A- a | Figure a-13. bypass probe option (sheet 1 of 3) a | Emerson WORLD CLASS 3000 User Manual | Page 43 / 76
Pages:
1
…
41
42
43
44
45
…
76
wrong Brand
wrong Model
non readable
See also other documents in the category Emerson Health and hygiene:
ROSEMOUNT OCX 8800
(164 pages)
ROSEMOUNT 3000
(184 pages)
OXYMITTER 4000
(172 pages)
755A
(90 pages)
OXYBALANCE IM-106-4050
(64 pages)
ROSEMOUNT NGA2000 TO2
(48 pages)
3051S
(36 pages)
7003M
(74 pages)