Service manual 71, Troubleshooting guide – LG LAN091CNP User Manual
Page 71

Service Manual 71
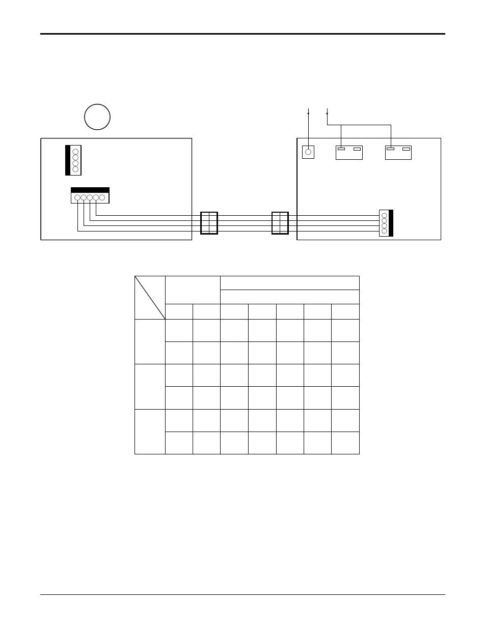
Voltage of Connectors according to Indoor Fan Speed
1
2
3
4
1
3
4
1 2 3 4 5
INDOOR
FAN
MOTOR
INDOOR PWB ASSY
Connecting wires
between Indoor
and Outdoor
Indoor
Connecting Terminal
Outdoor
Connecting Terminal
Input Power
TAB-N
CN-MOTOR
CN-DC/DC
RY-COMP-A
3
4
RY-COMP-B
BL BK BR RD
4
3
2
1
CN-DC/DC
BL
BK
BR
RD
+
-
S-Hi
Hi
Med
Low
Off
12k
OUTDOO
R CN-
DC/DC
INDOOR
CN-
DC/DC
INDOOR
CN-
MOTOR
No. of pins
DC Voltage(
±
10%)
4
2
4
3
4
3
3
3
2
2
2
2
35.5
11.97
35.5
15.87
35.5
15.87
32.96
11.97
32.96
15.87
32.96
15.87
25.17
11.97
25.17
15.87
25.17
15.87
17.28
11.97
17.28
15.87
17.28
15.87
0
11.97
0
15.87
0
15.87
Troubleshooting Guide
