Troubleshooting guide, Refrigeration cycle diagram – LG LAN091CNP User Manual
Page 54

54 Room Air Conditioner
Troubleshooting Guide
Troubleshooting Guide
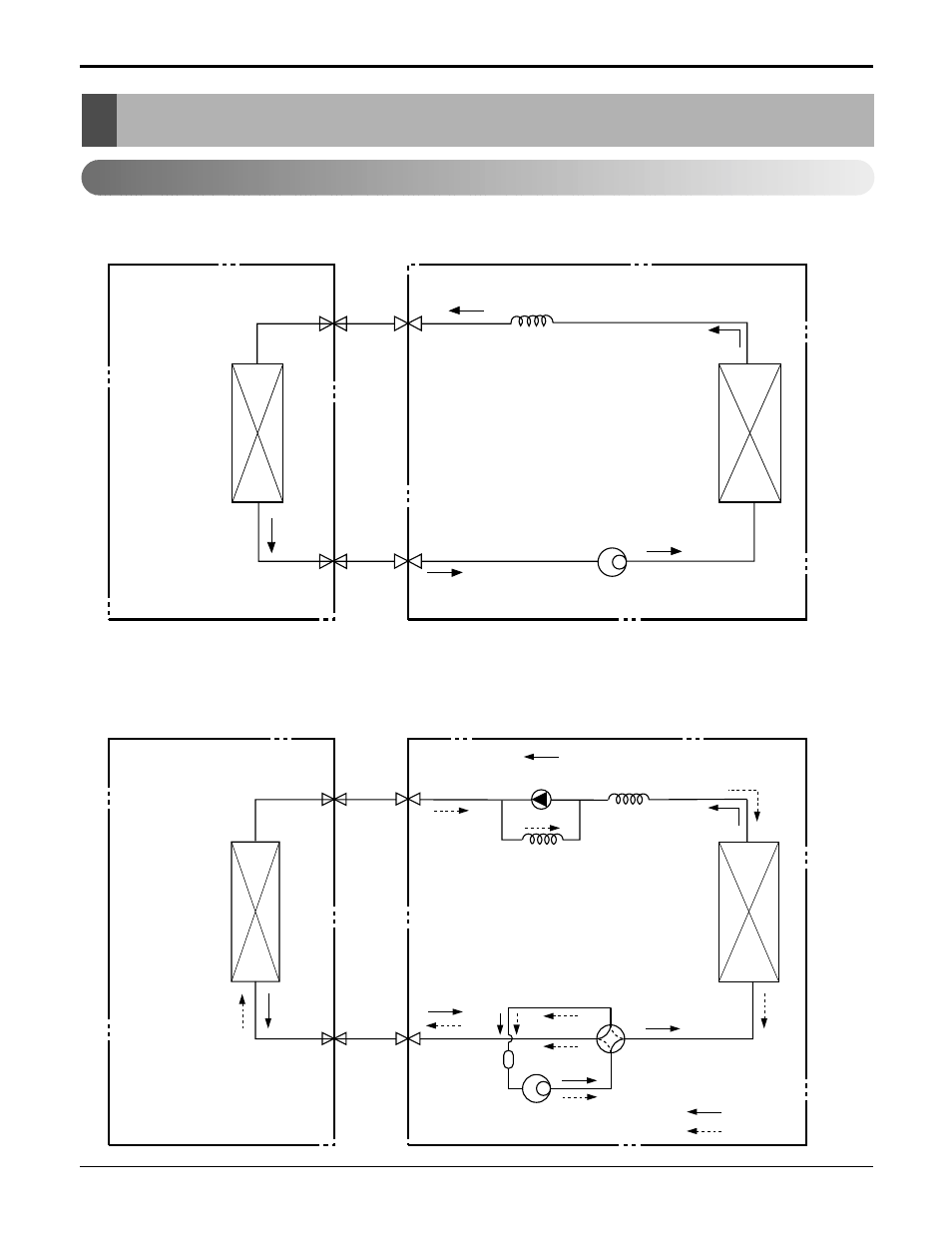
Refrigeration Cycle Diagram
INDOOR UNIT
OUTDOOR UNIT
INDOOR UNIT
OUTDOOR UNIT
HEAT
EXCHANGE
(EVAPORATOR)
HEAT
EXCHANGE
(EVAPORATOR)
HEAT
EXCHANGE
(CONDENSER)
HEAT
EXCHANGE
(CONDENSER)
COMPRESSOR
COMPRESSOR
GAS SIDE
GAS SIDE
LIQUID SIDE
LIQUID SIDE
CAPILLARY TUBE
CAPILLARY TUBE
CHECK VALVE
COOLING
HEATING
REVERSING
VALVE
(1) Cooling Only Models
(2) Cooling & Heating Models
