Search
Directory
Brands
LG manuals
Conditioners
LAN091CNP
Manual
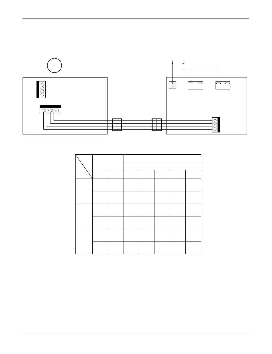
Service manual 71, Troubleshooting guide – LG LAN091CNP User Manual
Page 71
Text mode
Original mode
Service manual 71, Troubleshooting guide | LG LAN091CNP User Manual | Page 71 / 76
Pages:
1
…
69
70
71
72
73
…
76
wrong Brand
wrong Model
non readable
This manual is related to the following products:
LAU091CNP
LAN121CNP
LAU121CNP
LAN091HNP
LAU091HNP
LAN121HNP
LAU121HNP
LA090CPI
LA090CPO
LA120CP
See also other documents in the category LG Conditioners:
ARNU07GSEL1
(14 pages)
AMNH12GTRA0
(39 pages)
UT18H.NPD
(304 pages)
ARNU07GB1G1
(15 pages)
ARNU18GS3M2
(205 pages)
ARNU07GSEL2
(205 pages)
ARNU07GTEC2.ENWALEU
(205 pages)
ARNU15GBHA2
(193 pages)
ARNU24GCFU2
(205 pages)
ARNU07GSFE2
(239 pages)
ARNU09GSF11
(17 pages)
AS-W2438*H0
(9 pages)
LW1800PR
(50 pages)
Air Conditioner
(28 pages)
LT121CSG
(39 pages)
Floor Standing Type Air Conditioner
(30 pages)
LA120HPI
(76 pages)
LS090CP(AS-C0914DH0)
(80 pages)
LA121CPMO
(71 pages)
HB1004R
(40 pages)
L1404R
(27 pages)
EN 61000-2
(29 pages)
3828A22005P
(27 pages)
Air Conditioner LW701 HR
(44 pages)
LT1230C
(23 pages)
LSN180CE
(83 pages)
LB1200ER
(28 pages)
LT1230HR
(34 pages)
LW1404ER
(27 pages)
WG2405RY6
(42 pages)
LA090CP
(36 pages)
11,800 BTU Thru-the-Wall Air Conditioner Use & Care Guide
(48 pages)
11,800 BTU Thru-the-Wall Air Conditioner Use & Care Guide
(48 pages)
230/208V
(35 pages)
3828A30087S
(33 pages)
LP 1200DXR
(26 pages)
LT1030HR
(48 pages)
LS122CE
(31 pages)
6710 YS
(19 pages)
LP091CEM-Y8
(48 pages)
LP121HEM-Y8
(47 pages)
AMNC123APM0
(86 pages)
LM50 2004-E1
(78 pages)
LS305HV
(31 pages)