Schematic diagram, Power input – LG 230/208V User Manual
Page 32

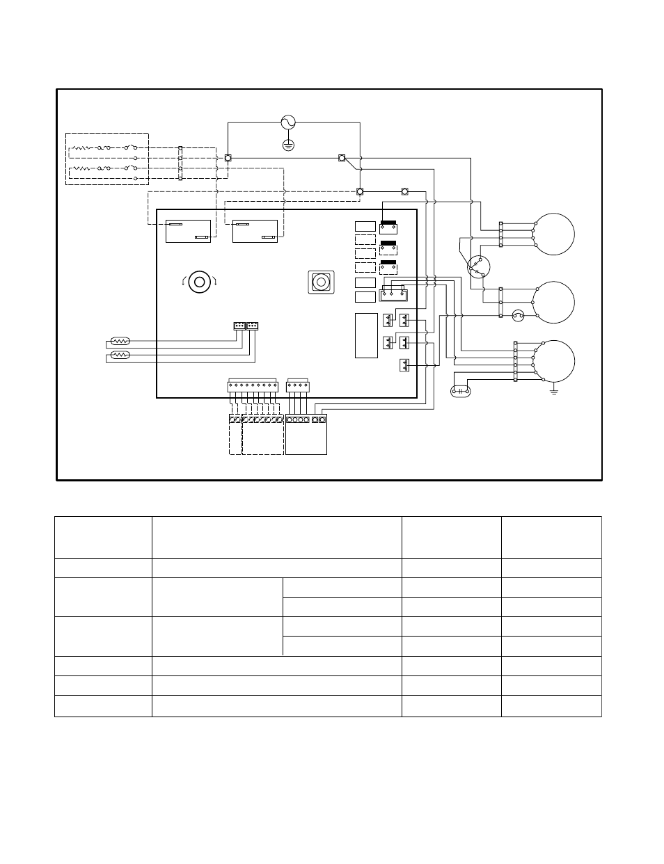
—32—
6. SCHEMATIC DIAGRAM
HEATER ASSY
HEATER
FOR E/HEATER MODEL
INDOOR PIPE
THERMISTOR
INDOOR AIR
THERMISTOR
FDC
REMOTE
THERMOSTAT
EXTERNAL
TRANS
C
F
CAPACITOR
CAPACITOR
P/NO:3854A20196A
BK
RD
TB-1
TB-2
TB-3
TB-4
POWER INPUT
WH
WH
RD
RD
BK
BK
WH
WH(BL)
(Ribbed)
BK(BR)
(Plain)
GN(GN/YL)
BL
VR1
WARM
COOL
BL
LOW
FAN
CN-ODFH
CN-ODF
CN-ICR
CN-IDF
CN-L
CN-N
CN-COMP
RY-COMP
CN-EXT(L)
CN-EXT(N)
CN-EXT2
CN-TRANS
CN-4WAY
CN-IDFH
CN-IDFL
CN-ODFL
CN-ICR
CN-4W
AY
HIGH
FAN
LOW
HEAT
LOW
COOL
HIGH
COOL
HIGH
HEAT
IN
COIL
IN
AIR
OFF
SW1
BL
RD
RD
RD
OR
BR
YL
YL
BR
OR
RD
BL
BL
BL
BR C
C
H
F
YL
YL
S
R
O.L.P
COMP
BK
BK
BK
BK
RD
OR(BR)
OR(BR)
RD
INDOOR
FAN
MOTOR
OUTDOOR
FAN
MOTOR
GN(GN/YL)
RD
BK
BK
BK
3
RY-HEAT1
RY-HEAT2
4
3
4
FUSE
LINK
5KW
BI-METAL
THERMOSTAT
LOCATION
NO.
1
2
3
4
5
6
Q'TY
PER SET
1
1
1
1
1
1
1
1
REMARKS
DESCRIPTION
POWER CORD
MOTOR
CAPACITOR
THERMOSTAT
COMPRESSOR
OVERLOAD PROTECTOR
INDOOR
OUTDOOR
BOX TYPE
CAN TYPE
- ARNU07GSEL1 (14 pages)
- AMNH12GTRA0 (39 pages)
- UT18H.NPD (304 pages)
- ARNU07GB1G1 (15 pages)
- ARNU18GS3M2 (205 pages)
- ARNU07GSEL2 (205 pages)
- ARNU07GTEC2.ENWALEU (205 pages)
- ARNU15GBHA2 (193 pages)
- ARNU24GCFU2 (205 pages)
- ARNU07GSFE2 (239 pages)
- ARNU09GSF11 (17 pages)
- AS-W2438*H0 (9 pages)
- LW1800PR (50 pages)
- Air Conditioner (28 pages)
- LT121CSG (39 pages)
- Floor Standing Type Air Conditioner (30 pages)
- LA120HPI (76 pages)
- LS090CP(AS-C0914DH0) (80 pages)
- LA121CPMO (71 pages)
- HB1004R (40 pages)
- L1404R (27 pages)
- EN 61000-2 (29 pages)
- 3828A22005P (27 pages)
- Air Conditioner LW701 HR (44 pages)
- LT1230C (23 pages)
- LSN180CE (83 pages)
- LB1200ER (28 pages)
- LT1230HR (34 pages)
- LW1404ER (27 pages)
- WG2405RY6 (42 pages)
- LA120CP (76 pages)
- LA090CP (36 pages)
- 11,800 BTU Thru-the-Wall Air Conditioner Use & Care Guide (48 pages)
- 11,800 BTU Thru-the-Wall Air Conditioner Use & Care Guide (48 pages)
- 3828A30087S (33 pages)
- LP 1200DXR (26 pages)
- LT1030HR (48 pages)
- LS122CE (31 pages)
- 6710 YS (19 pages)
- LP091CEM-Y8 (48 pages)
- LP121HEM-Y8 (47 pages)
- AMNC123APM0 (86 pages)
- LM50 2004-E1 (78 pages)
- LS305HV (31 pages)
