Installation, Troubleshooting – haier HK1000TXVE/ME User Manual
Page 6

13
Troubleshooting
The following circumstances do not constitute problems. Do not contact the maintenance service
until the
problem has been confirmed.
Problem
Possible cause
The washing machine fails to operate
Poor connection to power supply
Power failure
Door is not properly closed (It will show E1)
Machine has not been switched on
Washing machine cannot be filled
with water
Water tap is not turned on (It will show E5)
Water pressure is less than 0.05Mpa
The inlet hose is kinked
Water supply failure
The program dial is not properly set
The door is not properly closed
The inlet hose filter is blocked
The machine is draining while is
being filled
The height of the drainage hose is below 80cm (it
should be within 80-100cm)
The drainage hose end is in water
Drainage failure
Drainage hose is blocked (It will show E2)
Drainage hose end is below 100cm above the floor
level
The filter is blocked
Strong vibration during spin drying
Not all packing bolts have been removed
Washing machine is located on an uneven surface
Machine load is over 6kg.
Not all foam packing has been removed from the motor
Operation stops before completion
of a wash cycle
Water or electricity failure
Washing machine is in soak cycle
Operation stops for a period of time
Washing machine is in soak cycle
Washing machine gives an error message.
Excessive foam in the drum, which
spilled to the distribution drawer
The detergent is not a low-foaming type or for manual
wash
Excessive use of detergent
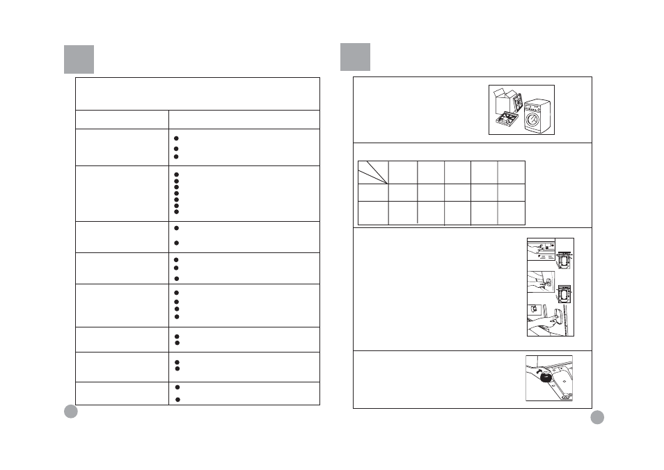
4
ƽ
Remove all the packing materials (including the
foam base)to prevent vibration during use, as
shown in Fig.1.Upon opening of the package,
water drops may be seen on the plastic bag and
the porthole. This is normal phenomenon resulting
from water test in the factory.
Fig
. 1
ƽ
Check attachments and materials with reference to the following
ƽ Dismantle the packing bolts as shown in Fig. 2.
The packing bolts are designed for clamping anti-vibration components
inside of the washing machine during the transportation process.
Beforeuse:
1. Remove the back plate;
2. Remove the three packing bolts on the back plate and take out the
rubber hose;
3. Replace the back plate;
4. Fill the holes left by the packing bolts with plastic plugs.
(Attention: The packing bolts and rubber hose should be kept in a safe
place for later use)
Fig.3
ƽ Adjusting the washing machine
There are adjustable feet under the bottom of the washing machine. Before
use, the washing machine should be adjusted, as shown in Fig. 3, so that it
is level.
Fig.2
Model
HK1600TXVE/ME
HK1400TXVE/ME
Qty
Name
Operation
manual
1
1
1
1
4
Quality
certificate
Water
hose
Drainage
holder
Plastic
plugs
Installation
HK1200TXVE/ME
HK1000TXVE/ME
HK800TXVE/ME
1
1
1
1
3