Search
Directory
Brands
Emerson manuals
Conditioners
Liebert XDR
Manual
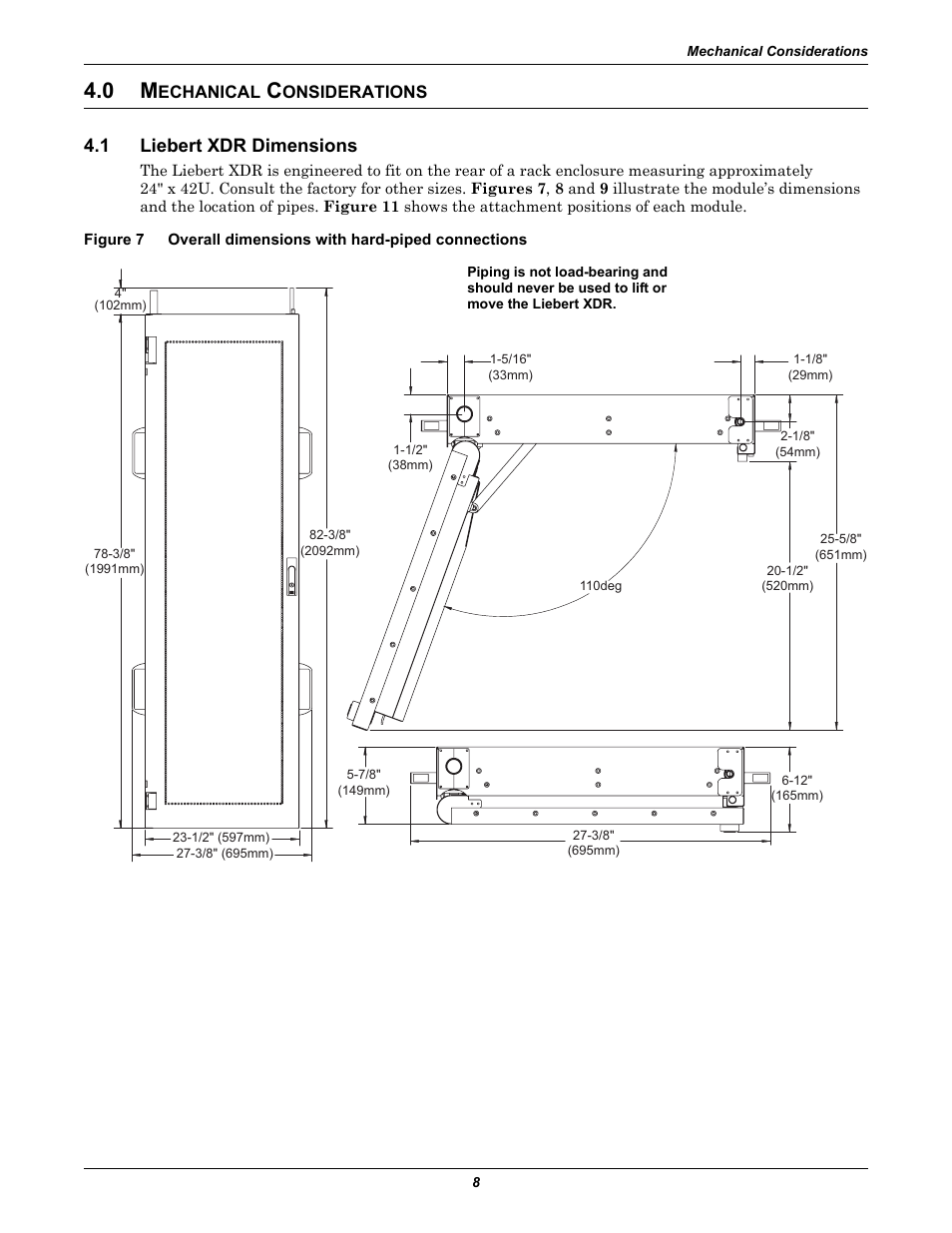
0 mechanical considerations, 1 liebert xdr dimensions, Echanical – Emerson Liebert XDR User Manual
Page 14: Onsiderations, Liebert xdr dimensions, Figure 7, Overall dimensions with hard-piped connections
Text mode
Original mode
0 mechanical considerations, 1 liebert xdr dimensions, Echanical | Onsiderations, Liebert xdr dimensions, Figure 7, Overall dimensions with hard-piped connections | Emerson Liebert XDR User Manual | Page 14 / 40
Pages:
1
…
12
13
14
15
16
…
40
wrong Brand
wrong Model
non readable
See also other documents in the category Emerson Conditioners:
SCROLL SZO56
(42 pages)
COPELAND SCROLL SZV22
(34 pages)
Liebert Challenger With Liebert iCOM Control 3000/ITR
(72 pages)
Precision Cooling For Business-Critical Continuity Figure i
(36 pages)
2
(56 pages)
50 Pint Dehumidifier CA Prop65
(3 pages)
12,000 BTU Smart Window Air Conditioner Warranty
(48 pages)