Search
Directory
Brands
Energy Tech Laboratories manuals
Water boiler
New Yorker CL Series
Manual
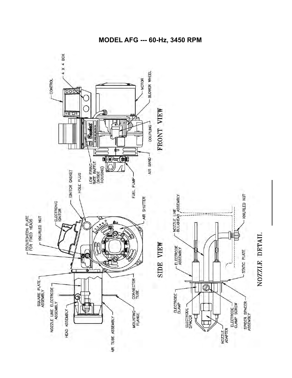
Beckett oil burner parts list, Model afg -hz, 3450 rpm – Energy Tech Laboratories New Yorker CL Series User Manual
Page 43
Text mode
Original mode
Beckett oil burner parts list, Model afg -hz, 3450 rpm | Energy Tech Laboratories New Yorker CL Series User Manual | Page 43 / 52
Pages:
1
…
41
42
43
44
45
…
52
wrong Brand
wrong Model
non readable
This manual is related to the following products:
New Yorker F5
Riello 40 Series
New Yorker F3
See also other documents in the category Energy Tech Laboratories Water boiler:
SS120
(4 pages)