Search
Directory
Brands
Dacor manuals
Radio
AESP03
Manual
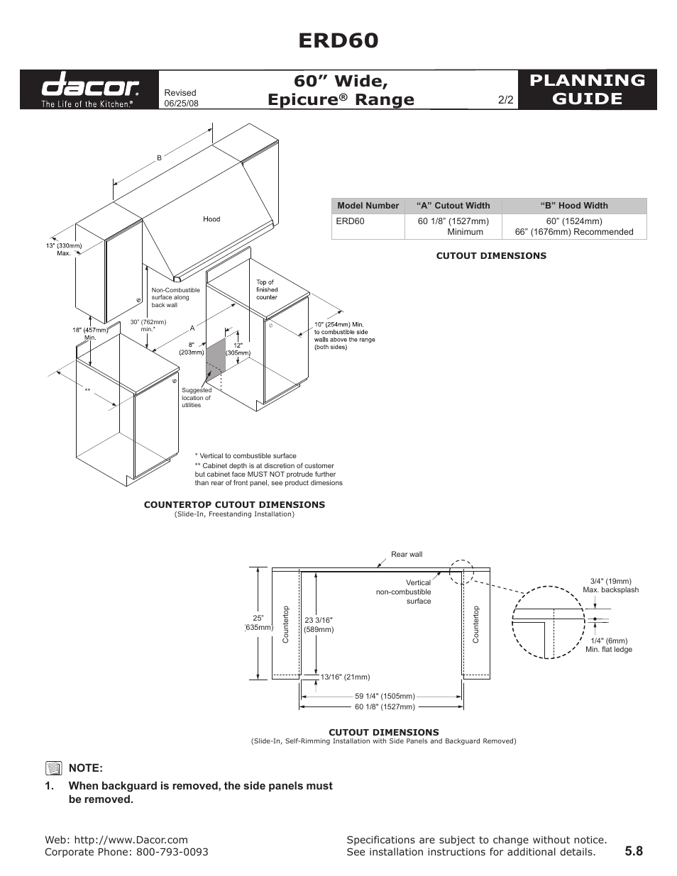
Erd60, Planning guide, 60” wide, epicure – Dacor AESP03 User Manual
Page 2: Range
Text mode
Original mode
Erd60, Planning guide, 60” wide, epicure | Range | Dacor AESP03 User Manual | Page 2 / 2
Pages:
1
2
wrong Brand
wrong Model
non readable
This manual is related to the following products:
EGR30
ERD60LP
ERD60
See also other documents in the category Dacor Radio:
ERD30
(2 pages)
AERB30G09
(2 pages)
MRES30
(8 pages)
ER30DSRSCH
(4 pages)
ER30D
(36 pages)
Epicure EGR30LP
(2 pages)
Epicure ER30GSCH
(2 pages)
ER36D
(4 pages)
ERD60
(3 pages)
ER48D
(4 pages)
Range Cooking
(64 pages)