Figure 3.4 – Drolet ESCAPE 1800 DB03115 User Manual
Page 40

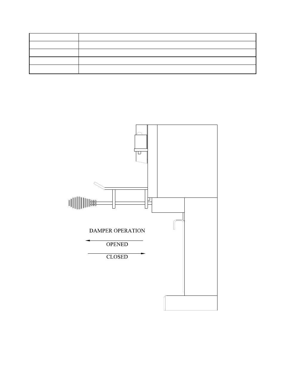
Intensity
Draft Setting
Low
Push Control to end of travel.
Medium Low
Pull Control by 3/8” from closed position.
Medium High
Pull Control by 3/4” from closed position
High
Pull Control to end of travel.
Table 3.4
Closing the draft control down too soon will lower combustion efficiency, and may result in
creosote build-up in the chimney (which could lead to a future chimney fire).
C
AUTION
:
T
HE
A
DJUSTMENT
R
ANGE
S
HOULD
N
OT
B
E
A
LTERED
F
OR
I
NCREASED
F
IRING
F
OR
A
NY
R
EASON
.
Figure 3.4
This manual is related to the following products:
