Drawings, Warranty information, 7) drawings – OT Systems FT210AB User Manual
Page 14: 8) warranty information

FT210AB Series Installation & Operation Manual
14
MTBF
>100’000 Hours
*
If the optical connector is FC type, the suffix in the model number will be
“-FXX”. Eg. FT210AB-FST
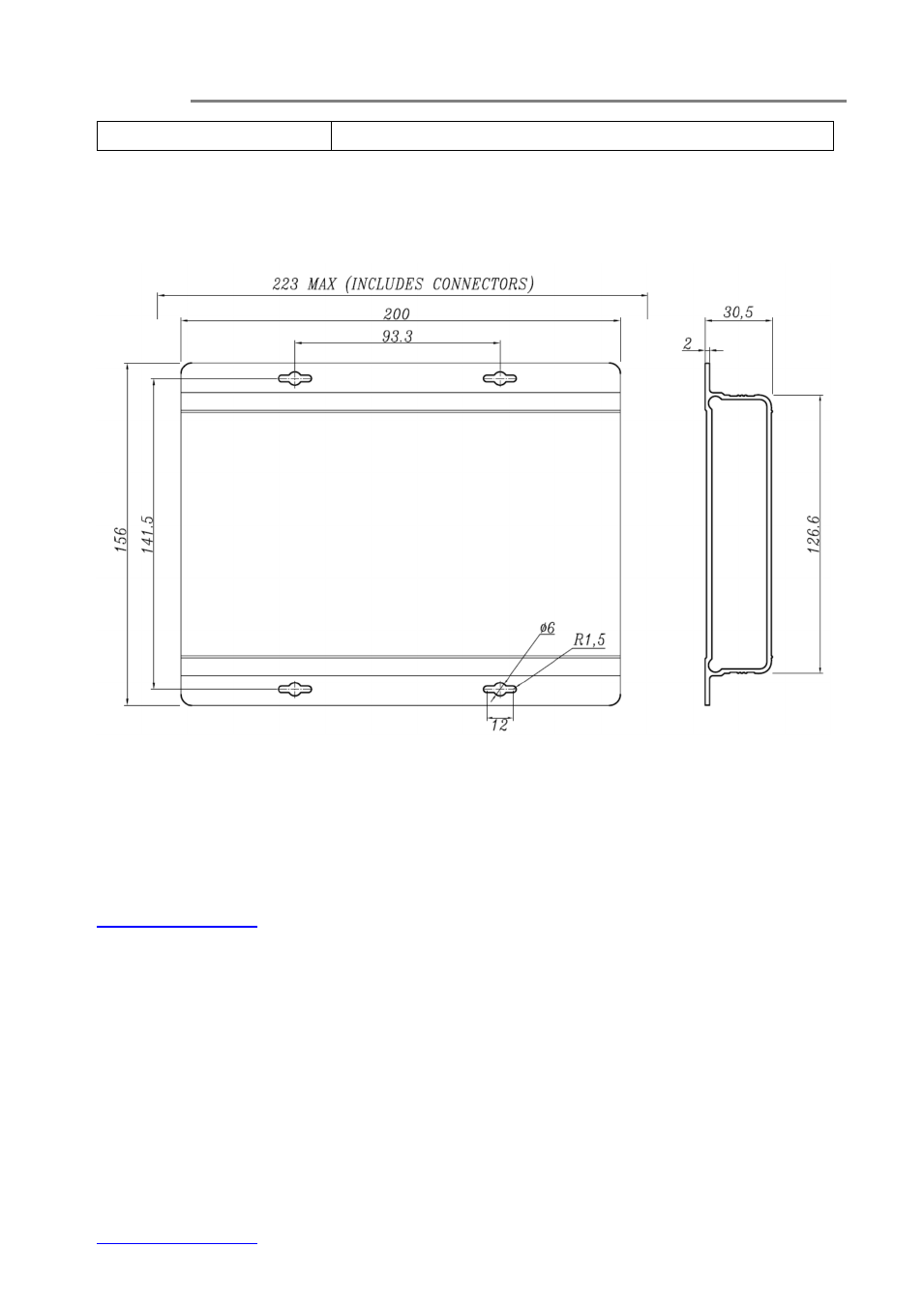
(7) Drawings
Fig. 7.1 Dimensional drawings of Standalone unit (mm)
(8) Warranty Information
All OT Systems FT Series products are subject to a limited life-time warranty offered by the
company in normal circumstances. Please refer to the OT Systems Products Warranty
Statement for details. Access to the statement is available in our company website at
See also other documents in the category OT Systems Relay:
- ET24122M-S (8 pages)
- ET24122M-S (9 pages)
- ET8122M-S-DR (9 pages)
- ET4111Pp-S-DR (3 pages)
- ET8242M-S-DR (8 pages)
- NHD100S (2 pages)
- ET2111 series (19 pages)
- NHD110DRMicro (4 pages)
- NHD100Micro (3 pages)
- FTD100Micro (11 pages)
- FTD100 (10 pages)
- FTD100-XXR3 (13 pages)
- FT400 (14 pages)
- FT800 (14 pages)
- FTD110DBMicro (15 pages)
- FT410DB (17 pages)
- FT810DB (18 pages)
- FTD110DB-XXR3 (16 pages)
- FT210DB (17 pages)
- FT120DB (18 pages)
- FT220DB (18 pages)
- FT420DB (17 pages)
- FT820DB (17 pages)
- FT210DBE (17 pages)
- FT410DBE (17 pages)
- FT210CB (15 pages)
- FT110AB (16 pages)
- FT810AB (15 pages)
- FT120AB (15 pages)
- FT220AB (16 pages)
- FT420AB (15 pages)
- FT820AB (15 pages)
- FT010DB (17 pages)
- FT040DB (17 pages)
- FT010AF (15 pages)
- FT040AB (15 pages)
- FT010CB (15 pages)
- FT080CF (15 pages)
- FT-CWDM (10 pages)
- MR-C10 (2 pages)
