Directory
Brands
RKI Instruments manuals
Sensors
35-3001-01
Manual

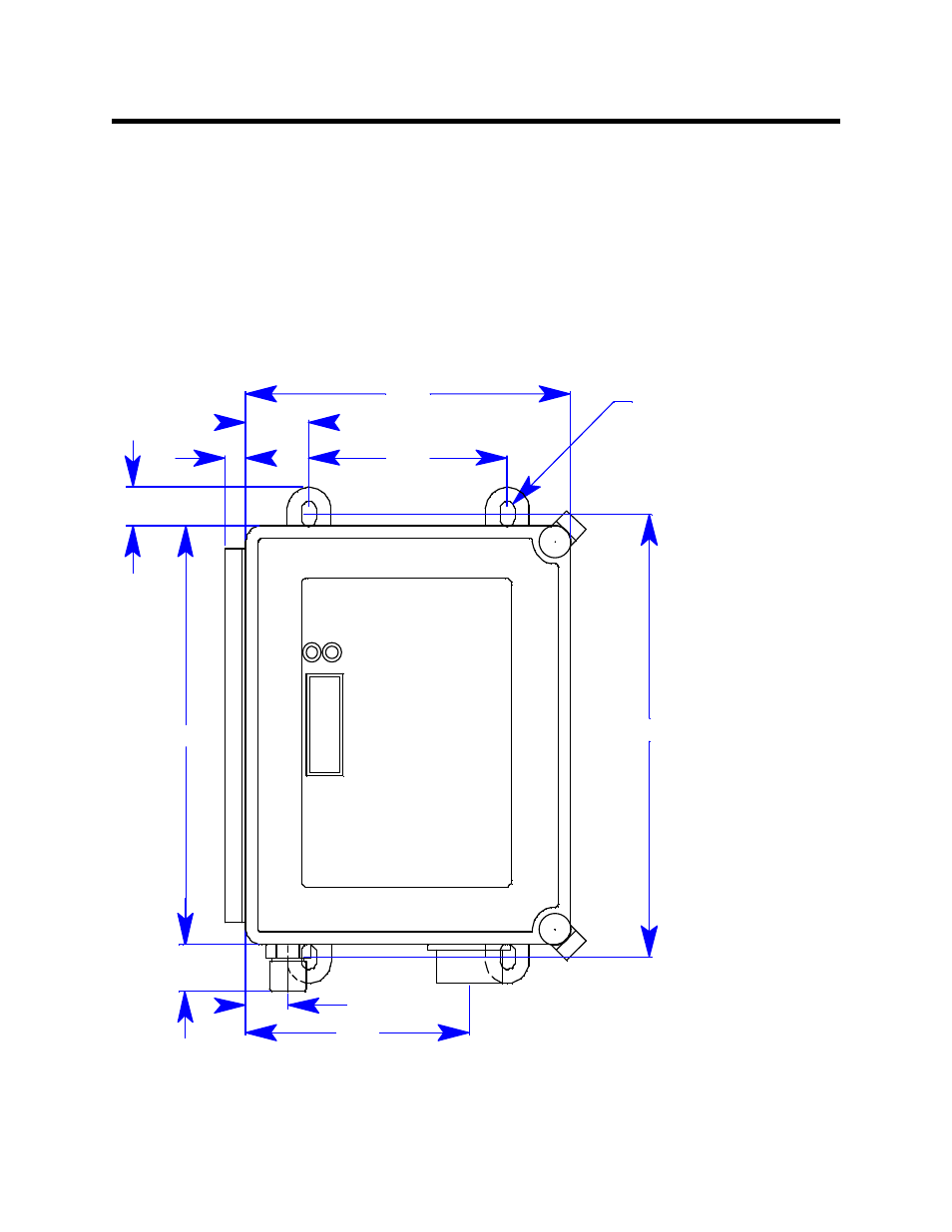
Installation, Mounting the sample-draw combustible gas detector – RKI Instruments 35-3001-01 User Manual

Page 10

  • Text mode
  • Original mode
Installation, Mounting the sample-draw combustible gas detector | RKI Instruments 35-3001-01 User Manual | Page 10 / 21 Installation, Mounting the sample-draw combustible gas detector | RKI Instruments 35-3001-01 User Manual | Page 10 / 21
Pages: 1 … 8 9 10 11 12 … 21
  • wrong Brand
  • wrong Model
  • non readable
See also other documents in the category RKI Instruments Sensors:
  • Eagle Series (89 pages)
  • Eagle Series (66 pages)
  • 01 Series Manual (33 pages)
  • 01 Series Quik Start (2 pages)
  • OX-94 (13 pages)
  • FP-3 (16 pages)
  • GasWatch 1 (18 pages)
  • GasWatch 2 Manual (37 pages)
  • GasWatch 2 Quik Start (2 pages)
  • GP-01 (34 pages)
  • GP-01 with self resetting alarms (33 pages)
  • GP-204 (7 pages)
  • NP-204 (13 pages)
  • RI-215A (24 pages)
  • SC-01 (68 pages)
  • SC-01 (45 pages)
  • Data Cal 2000 (88 pages)
  • EAGLE 2 Manual (309 pages)
  • Eagle 2 Quik Start (2 pages)
  • GX-94 (3 pages)
  • GX-94 (52 pages)
  • SDM-E2 (224 pages)
  • SDM-E2 (89 pages)
  • Eagle 1 Manual (89 pages)
  • Eagle 1 Quik Start (2 pages)
  • Inert Gas Testing Eagle with Two Pumps (66 pages)
  • Gas Tracer (234 pages)
  • Gas Tracer 10,000 ppm (120 pages)
  • GX-2001 Manual (45 pages)
  • GX-2001 Quik Start (2 pages)
  • GX-2001 Canadian Version (43 pages)
  • GX-2003 Manual (94 pages)
  • GX-2003 Quik Start (2 pages)
  • GX-2009 Manual (73 pages)
  • GX-2009 Quik Start (2 pages)
  • GX-2009 Supplement (2 pages)
  • GX-2012 Manual (185 pages)
  • GX-82 (22 pages)
  • GX-82A (43 pages)
  • GX-86 (22 pages)
  • GX-86A (39 pages)
  • GX-8000(PT0-098) (52 pages)
  • GX-8000(H4-0050) (23 pages)
  • RX-516 (36 pages)
  • GX-2009 (1 page)
Home Brands Popular manuals Recently added
Manuals Directory

© 2012–2025, azmanual.top
All rights reserved.