Directory
Brands
Multiquip manuals
Pumps
ST70
Manual

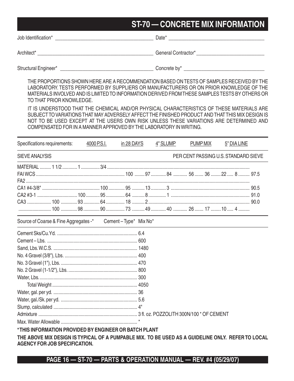
St-70 — concrete mix information – Multiquip ST70 User Manual

Page 16

  • Text mode
  • Original mode
St-70 — concrete mix information | Multiquip ST70 User Manual | Page 16 / 92 St-70 — concrete mix information | Multiquip ST70 User Manual | Page 16 / 92
Pages: 1 … 14 15 16 17 18 … 92
  • wrong Brand
  • wrong Model
  • non readable
See also other documents in the category Multiquip Pumps:
  • LS-600 (152 pages)
  • QP40TH (70 pages)
  • Electri-Hydraulic Pump JPU1 (46 pages)
  • High Pressure Centrifugal Pump (Honda GX340K1PKT2/GX340U1PKT2 Gasoline Engine) QP305SLT (68 pages)
  • CENTRIFUGAL PUMP QP2H (68 pages)
  • ST45HRMCE (140 pages)
  • Pump QP-3TH (2 pages)
  • MQ Multiquip Centrifugal Pump qp-402h (70 pages)
  • QP2TE (58 pages)
  • AP8 Series (124 pages)
  • MP150SDLTE Operation Manual (58 pages)
  • MP150SDLTE Parts Manual (56 pages)
  • QP205SH (36 pages)
  • QP305SLT (38 pages)
  • QP204H (68 pages)
  • QP2E (56 pages)
  • QP2H (36 pages)
  • QP303H (36 pages)
  • QP402H (36 pages)
  • CP20H (68 pages)
  • CP30H (68 pages)
  • QP205SLT (38 pages)
  • QP201TE (54 pages)
  • QP202TH (70 pages)
  • QP2TH (38 pages)
  • QP301TA_TY (14 pages)
  • QP301TH (70 pages)
  • QP3TE (56 pages)
  • QP3TH (38 pages)
  • QP40TE (56 pages)
  • QP4TE (60 pages)
  • QP4TH (38 pages)
  • MQ41TDH (88 pages)
  • MQ600TD80 (76 pages)
  • MQ62TDD (116 pages)
  • QP2TZ (36 pages)
  • QP3TY (56 pages)
  • QP3TZ (36 pages)
  • QP4TZ (36 pages)
  • QP4TZT10P (118 pages)
  • T20H (70 pages)
  • T30H (70 pages)
  • MQD206H (70 pages)
  • MQD2H (48 pages)
  • MQD305 (76 pages)
Home Brands Popular manuals Recently added
Manuals Directory

© 2012–2025, azmanual.top
All rights reserved.