Hotblock circuitry diagram with alarm – Environmental Express HotBlock Ogden 3200 User Manual

Page 14

background image

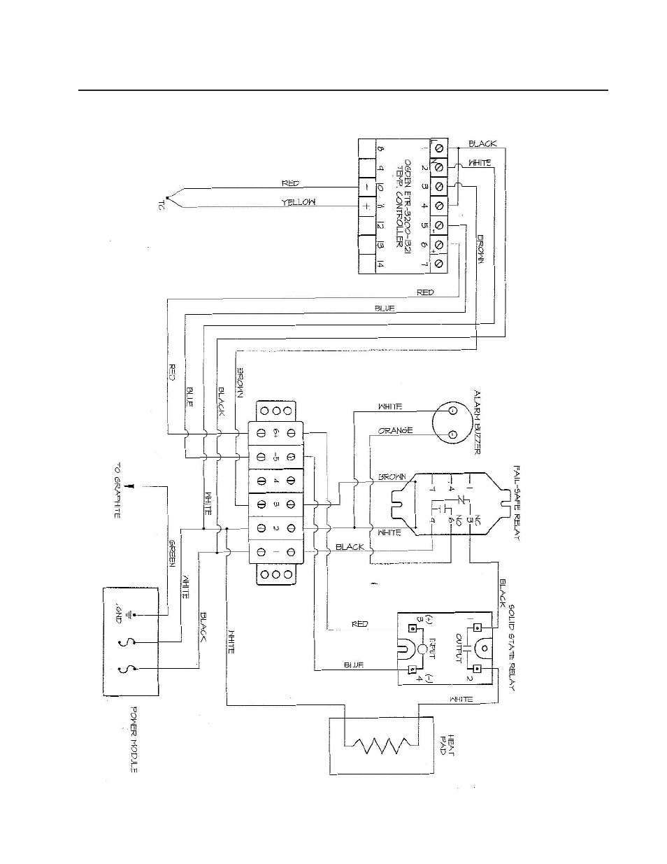
HotBlock Circuitry Diagram with Alarm

HotBlock Operation Guide

Environmental Express • 13

Call
1.800.343.5319