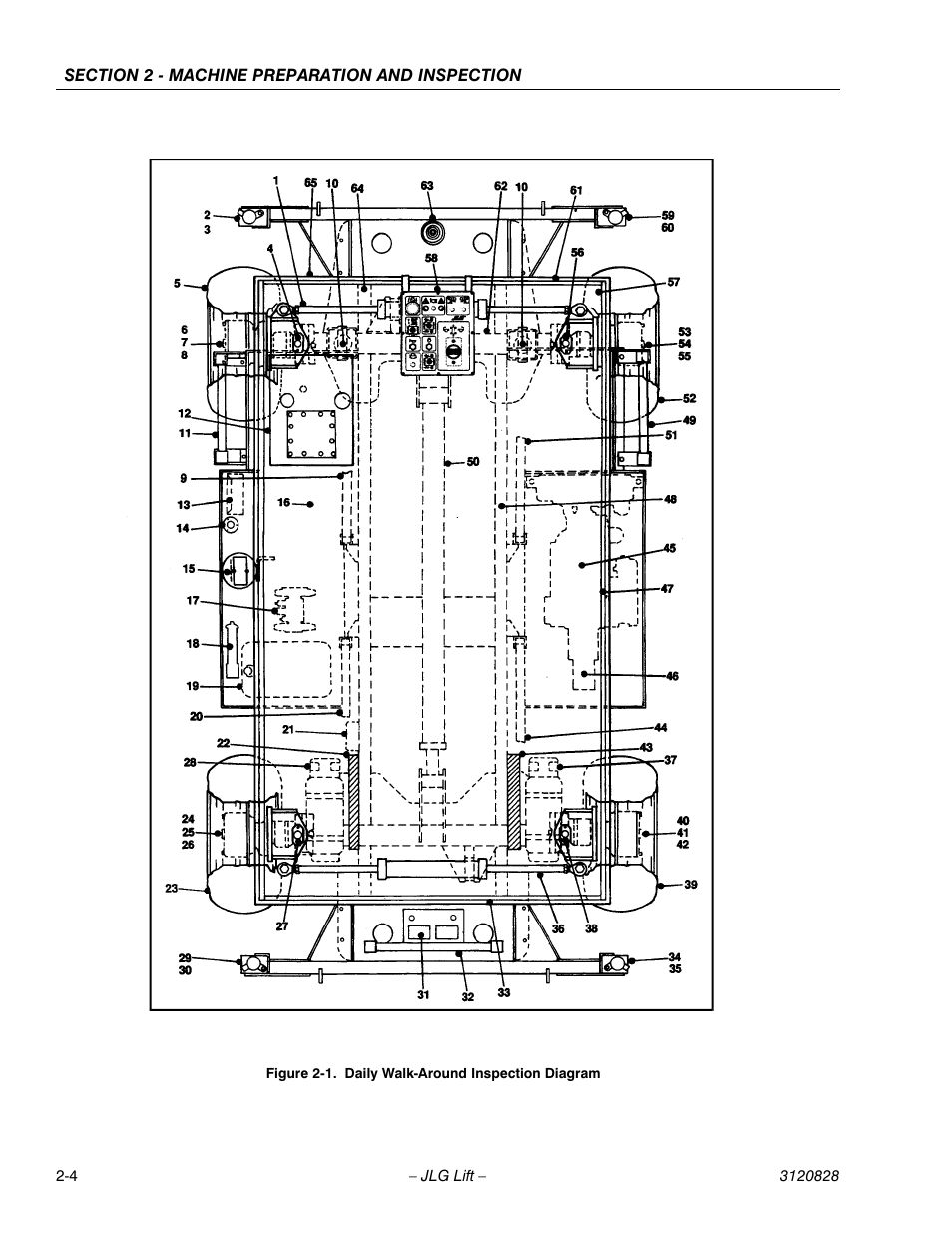
Daily walk-around inspection diagram -4 – JLG 500RTS Operator Manual User Manual
Page 18
                    This manual is related to the following products:                                    
                                                                        See also other documents in the category JLG Special machinery:                                                            
                    - 120HX Service Manual (116 pages)
 - 544D-10 Parts Manual (730 pages)
 - 100SX Parts Manual (224 pages)
 - 450A Operator Manual (68 pages)
 - 15DVL (3121839) Parts Manual (126 pages)
 - E450 Operator Manual (116 pages)
 - E450 Operator Manual (106 pages)
 - G5-18A Operator Manual (142 pages)
 - 2505H Operator Manual (148 pages)
 - 40HA ANSI Parts Manual (322 pages)
 - 400RTS Service Manual (100 pages)
 - 660SJ Parts Manual (404 pages)
 - 660SJ Parts Manual (306 pages)
 - 660SJ Parts Manual (382 pages)
 - 660SJ Parts Manual (352 pages)
 - 660SJ Parts Manual (310 pages)
 - 600S_SJ Parts Manual (299 pages)
 - 600S_SJ Parts Manual (302 pages)
 - 19AMI (3120758) Service Manual (68 pages)
 - 500RTS ANSI Service Manual (80 pages)
 - 400RTS ANSI Service Manual (98 pages)
 - LSS Scissors (78 pages)
 - 510AJ Series II Operator Manual (104 pages)
 - 800S Operator Manual (158 pages)
 - 800S Operator Manual (130 pages)
 - 35xxPS Operator Manual (176 pages)
 - 400RTS ANSI Operator Manual (48 pages)
 - 500RTS ANSI Operator Manual (46 pages)
 - 800A_AJ Operator Manual (134 pages)
 - 800A_AJ Operator Manual (150 pages)
 - 266 Operator Manual (140 pages)
 - G9-43A Parts Manual (788 pages)
 - G6-42A Parts Manual (478 pages)
 - M400AJP Narrow (108 pages)
 - E400 Operator Manual (118 pages)
 - 80HX_HX+6 ANSI Operator Manual (104 pages)
 - 1350SJP Quick Reference Guide (1 page)
 - 1350SJP Quick Reference Guide (2 pages)
 - 15VPSP (3120798) Parts Manual (98 pages)
 - X14J Operator Manual (169 pages)
 - 400S ANSI Service Manual (464 pages)
 - X17J Plus Operator Manual (176 pages)
 - 20AM Operator Manual (98 pages)
 - 3369LE Operator Manual (86 pages)
 - 3369LE Operator Manual (84 pages)
 
