Pfannenberg DTS 3181–400V / 460V User Manual
Pfannenberg Conditioners
This manual is related to the following products:
Table of contents
Document Outline
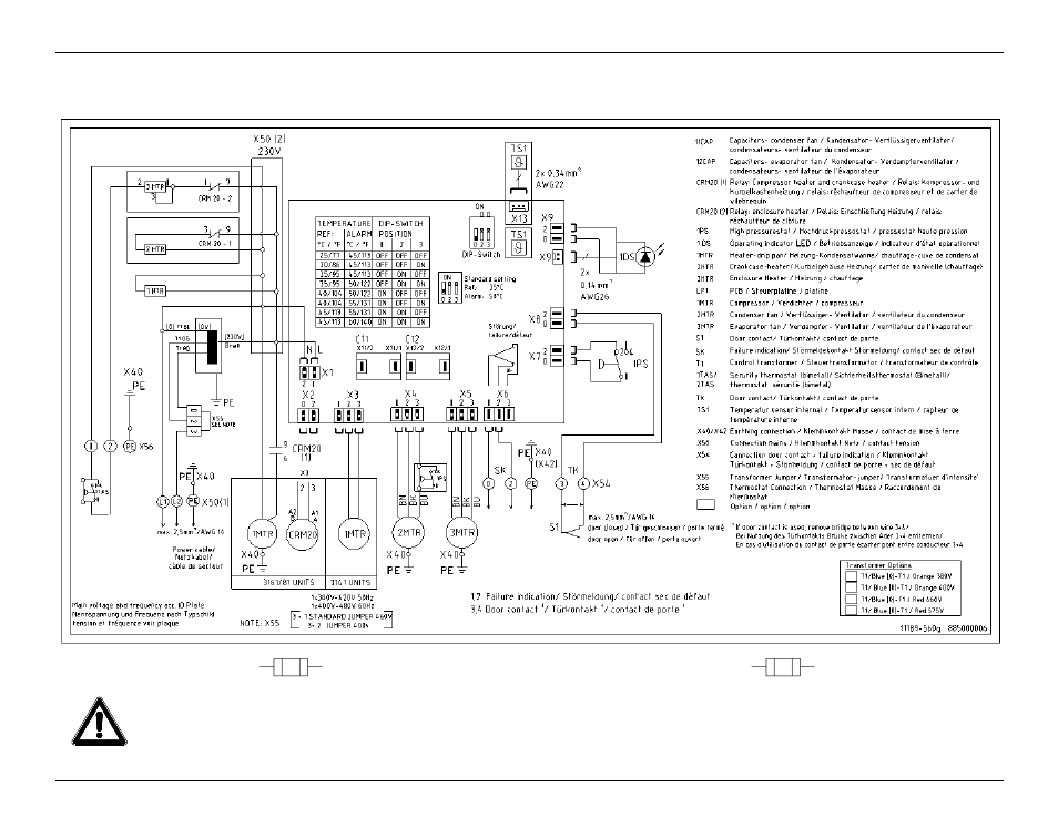
- Circuit Diagram and DIP-switch coding / Schaltplan und DIP-Schalter Codierung Schéma Électrique et DIP-commutateur codage
- Spare parts / Ersatzteile / Pièces de rechange
- Sealing / Dichtung / Joint
- Airflow principle / Luftstrom - Prinzipbild / Circulation d'air - Schéma de principe
- Switchgear cabinet cutout / Schaltschrank-Ausschnitt / Découpe de l'armoire de commande
- Technical Data / Technische Daten / Caractéristiques Techniques
