Rough-in-dimensions – A.O. Smith BTX-80 User Manual
Page 2

2
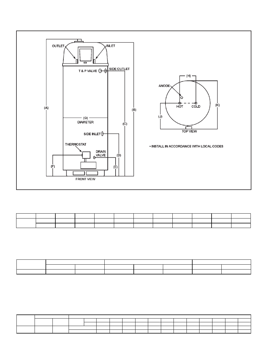
ROUGH-IN-DIMENSIONS
Rough-In-Dimensions
Model
Units
A B C D E F G H J K
Inches 70.62 68.20 51.90 20.90 9.15 12.00 22.00 8.00 15.81 26.92
BTX-80
cm 179.37
173.23
131.83 53.09 23.24 30.48 55.88 20.32 40.16 68.38
Top/Side Inlet and Outlet: 3/4" NPT
Gas Inlet: 1/2" NPT
Capacity and Gas and Electrical Characteristics
Approximate Capacity
Manifold Pressure
Electrical Characteristics
Model
U.S. Gals.
Liters
Gas Type
“WC
kPA
Volts/Hz
Amperes
BTX-80 50 189 Nat. 4.00 0.99 120/60 <5
All models - Maximum Supply Pressure: 14 inches W.C. (3.48kPa)
Minimum Supply Pressure Natural Gas: 5.0 inches W.C. (1.24kPa)
Minimum Pressure must be maintained under both load and no load (static and dynamic) conditions.
Recovery Capacities - U.S. Gallons/Hr. and Liters/Hr. at Temperature Rise Indicated
In p u t R ec o v er y
C ap ac ities
F ° 30 40 50 60 70 8 0 90 10 0
1 10
12 0
1 30
1 40
M o d el
R atin g
(B tu /h r)
R a tin g
(kW )
T e m p .
R ise
C ° 17 22 28 33 39 4 4 50 56 6 1 67 7 2 7 8
G P H
2 75
20 6
1 65
1 38
1 18
10 4 92 83 7 5 69 6 4 5 9
B T X-80 76 ,0 00 2 2.25
L P H
10 41 78 0 6 25 5 22 4 47 39 4 34 8 31 4 2 84 26 1 2 42 2 23
Recovery capacity based on 90% thermal efficiency.
