Tabella cottura – Indesit IFG-51-K.A-(GR)-S User Manual
Page 15

IT
15
PIZZA
• Per una buona cottura della pizza ultilizzate il programma MULTICOTTURA.
• Utilizzare una teglia in alluminio leggero, appoggiandola sulla griglia in
dotazione.
Con la leccarda si allungano i tempi di cottura e difficilmente si ottiene una
pizza croccante.
• Nel caso di pizze molto farcite è consigliabile inserire la mozzarella a metà
cottura.
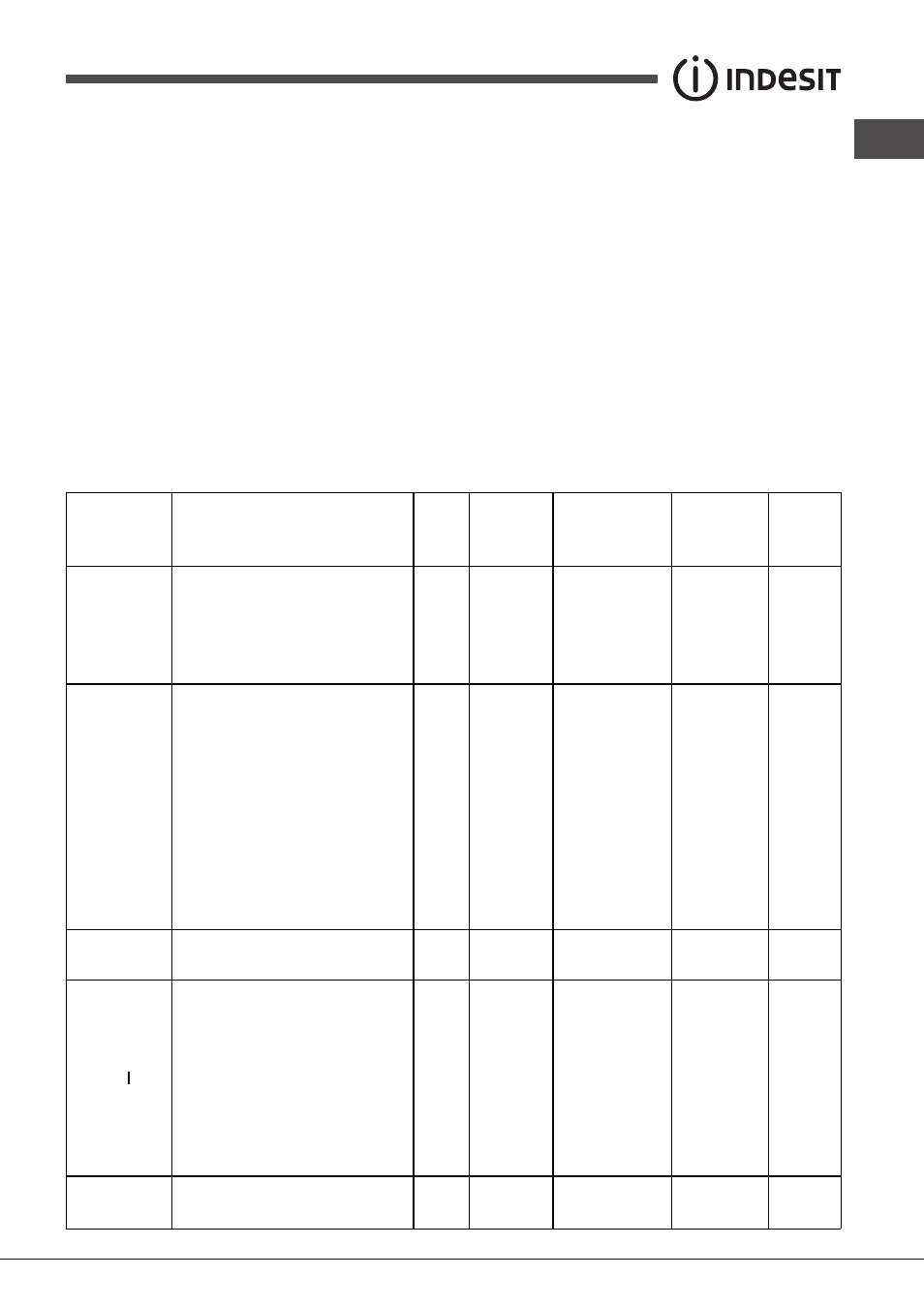
Programmi
Alimenti
Peso
(Kg)
Posizione
dei ripiani
Preriscaldamento
(minuti)
Temperatura
consigliata
Durata
cottura
(minuti)
Forno
Tradizionale
Anatra
Arrosto di vitello o manzo
Arrosto di maiale
Biscotti (di frolla)
Crostate
1
1
1
-
1
3
3
3
3
3
15
15
15
15
15
200
200
200
180
180
65-75
70-75
70-80
15-20
30-35
Multicottura
Pizza (su 2 ripiani)
Lasagne
Agnello
Pollo arrosto + patate
Sgombro
Plum-cake
Bignè (su 2 ripiani)
Biscotti(su 2 ripiani)
Pan di spagna (su 1 ripiano)
Pan di spagna (su 2 ripiani)
Torte salate
1
1
1
1+1
1
1
0.5
0.5
0.5
1
1.5
2 e 4
3
2
2 e 4
2
2
2 e 4
2 e 4
2
2 e 4
3
15
10
10
15
10
10
10
10
10
10
15
230
180
180
200
180
170
190
180
170
170
200
15-20
30-35
40-45
60-70
30-35
40-50
20-25
10-15
15-20
20-25
25-30
Forno Sopra Ritocchi di cottura
-
3/4
15
220
-
Grill
Sogliole e seppie
Spiedini di calamari e gamberi
Filetto di merluzzo
Verdure alla griglia
Bistecca di vitello
Cotolette
Hamburger
Sgombri
Toast
1
1
1
1
1
1
1
1
n.° 4
4
4
4
3/4
4
4
4
4
4
5
5
5
5
5
5
5
5
5
Max
Max
Max
Max
Max
Max
Max
Max
Max
8-10
6-8
10
10-15
15-20
15-20
7-10
15-20
2-3
Gratin
Pollo alla griglia
Seppie
1.5
1.5
2
2
5
5
200
200
55-60
30-35
Tabella cottura
