Jp en de fr es se ru nl it ck ch kr, 主な特長, 使用できる機能 – Nikon AF-S VR II 200-400mm f-4G IF ED User Manual
Page 6

6
Jp
En
De
Fr
Es
Se
Ru
Nl
It
Ck
Ch
Kr
Jp-01
R145_Jp_00_6 2010/01/26 13:47
■ 主な特長
●
ナノクリスタルコート(Nano Crystal Coat)を一部のレンズに施したことにより、
強い太陽光が当たる屋外撮影から、スポットライトのある室内撮影まで、クリアーで
抜けの良い画像を提供します。
●
レンズ側でフォーカスロックができる機能(AF-L)、AF(オートフォーカス)を作動
できる機能(AF-ON)、およびあらかじめ記憶させたピント位置を瞬時に呼び出せる
機能(MEMORY RECALL)を装備しています。
●
手ブレ補正機能(VRⅡ)を使用すると、使わないときと比べ約 4 段分
※ 1
シャッター
スピードを遅くして撮影できるため、シャッタースピードの選択範囲が広がり、幅広
い領域で手持ち撮影が可能です。(※ 1 当社測定条件によります。また、手ブレ補正
効果は、撮影者や撮影条件によって異なります。)
●
AF-I/AF-S テレコンバーターは、TC-14E/TC-14E Ⅱ /TC-17E Ⅱ
※ 2
/TC-20E
※ 2
/
TC-20E Ⅱ
※ 2
/TC-20E Ⅲ
※ 2
が使用可能です。(※ 2 オートフォーカスはできません。)
ご注意
●
DX フォーマットのニコンデジタル一眼レフカメラ(D300 シリーズ、D90 など)
に装着すると、対角線画角は 8°
―4°
となり、35mm 判換算では焦点距離約 300mm
―600mm 相当のレンズになります。
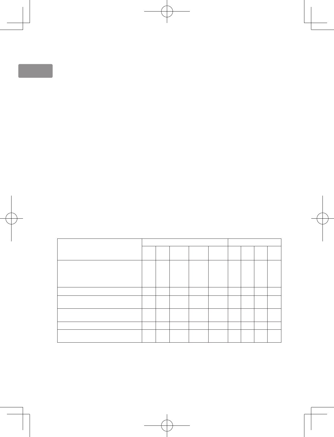
■ 使用できる機能
カメラによって、使用できる機能には制限・制約がありますので、カメラの使用説明書
でもご確認ください。
カメラ
機 能
露出(撮影)モード
VR AF フォーカス
ロック
メモリー
リコール
レンズ側
での AF P
※ 1
S
A
M
FX フォーマット /DX フォーマットの
ニコンデジタル一眼レフカメラ、
F6、F5、F100、F80 シリーズ、
ニコン U2、ニコン U
○
○
○
○
○
○
○
○
○
プロネア 600i、プロネア S
※ 2
×
○
○
○
○
○
○
○
○
F4 シリーズ、F90X シリーズ、
F90 シリーズ、F70D
Ч ○
※ 3
○
○
※ 4
△
※ 3
○
○
Ч
Ч
ニコン Us、F60D、F50D、
F-401 シリーズ
Ч
Ч
Ч
Ч
Ч
○
○
○
○
F-801 シリーズ、F-601M
Ч
Ч
Ч
Ч
Ч
○
○
Ч
Ч
F3AF、F-601、F-501、
MF カメラ(F-601M を除く)
Ч
Ч
Ч
Ч
Ч
Ч
Ч
Ч
Ч
○:使用可 △:制限あり ×:使用不可 VR:手ブレ補正 AF:オートフォーカス
※ 1:P には AUTO(オート)モード、イメージプログラムモード(シーンモード)を含みます。
※ 2:M モードの設定はありません。
※ 3: フォーカス作動設定スイッチが[AF-ON]の場合、AF(オートフォーカス)動作させる
にはシャッターボタン半押し状態で、フォーカス作動ボタンを押します。
※ 4: シャッターボタン半押し状態で、メモリーセットボタンやフォーカス作動ボタンを押します。