Installation, For qualified installers only), Installation example: freestanding masonry chimney – Avalon Stoves Astoria PS User Manual
Page 19: Travis industries

Installation
(For Qualified Installers Only)
1 9
© Travis Industries
4080725
1 0 0 - 0 1 1 5 4
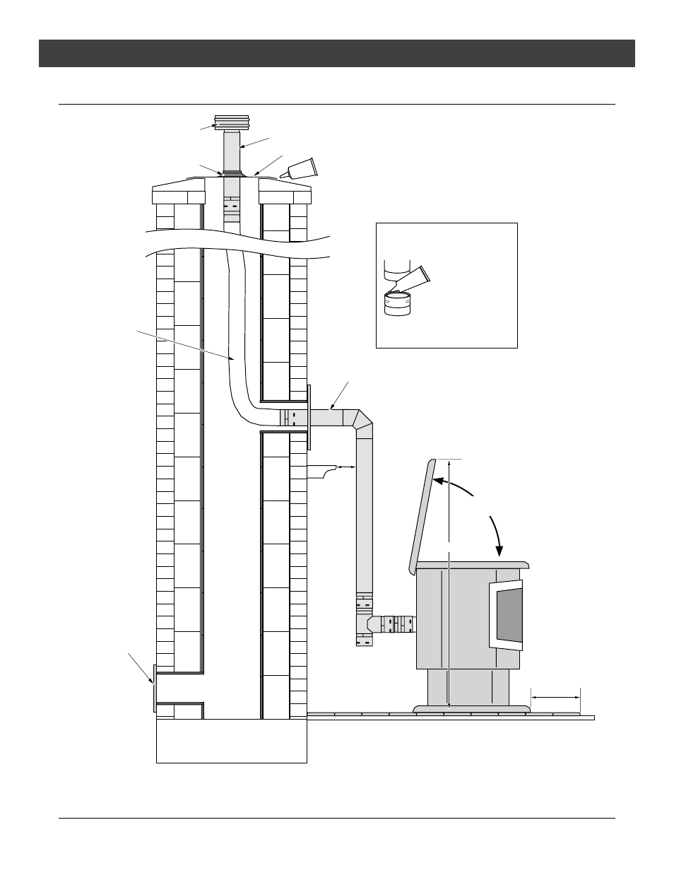
Installation Example: Freestanding Masonry Chimney
“L” Vent
Sections
6” Min.
“L” Vent
Storm Collar
Vertical Cap
Cover Plate (non-combustible)
Silicone
Seal the cover
plate with silicone.
Allow room for the
hopper lid to open
Vent
Clearance*
Clean-Out Access
Seal each vent
section (including
adapters, elbows,
etc...) by injecting a
liberal amount of
500° F. RTV
silicone into the gap
between sections.
500
° F. RTV
Silicone
57-1/2”
“L” Vent Flex
Section
*
Install vent at clearance specified by the vent manufacturer.