Search
Directory
Brands
Avalon Stoves manuals
Tools
Astoria PS
Manual
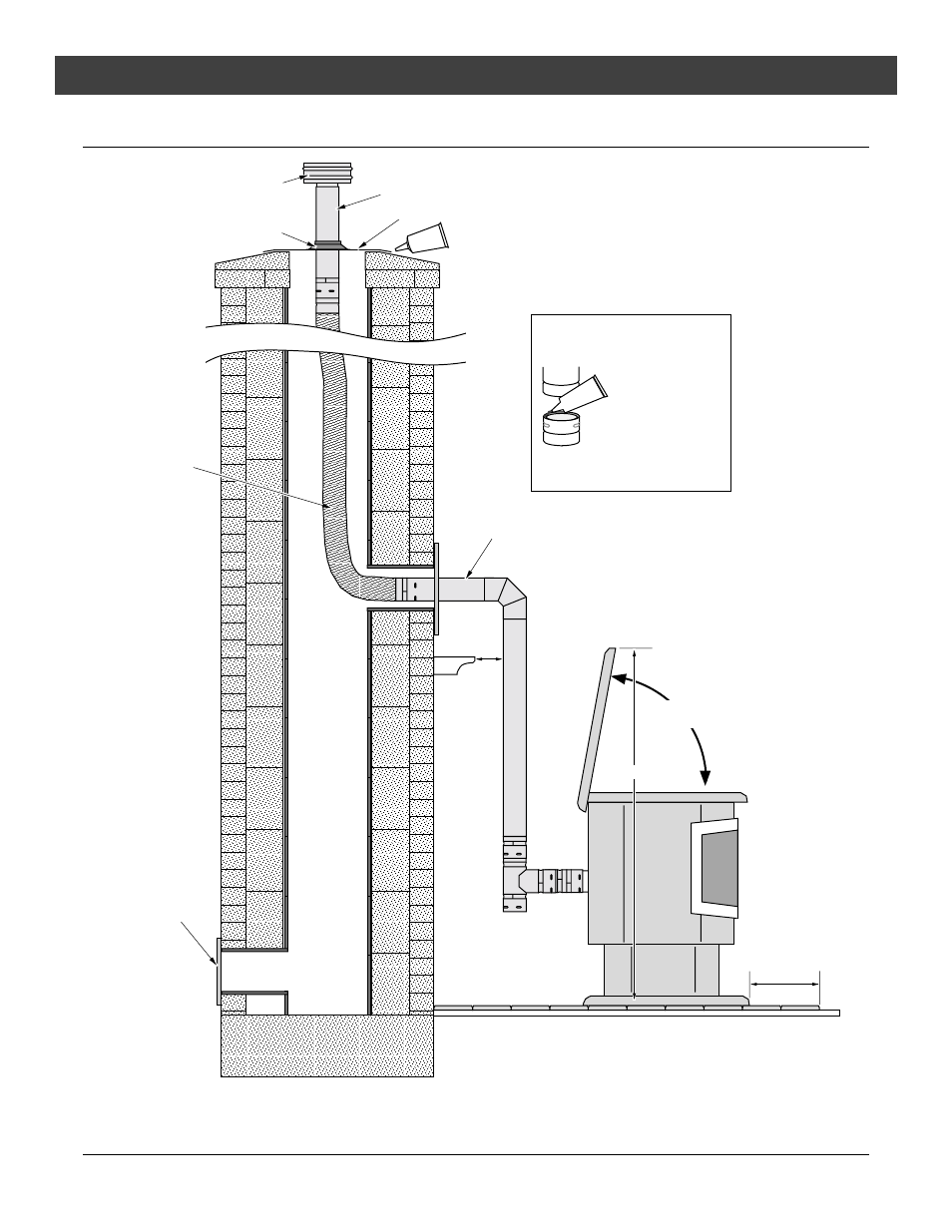
Installation, For qualified installers only), Installation example: freestanding masonry chimney – Avalon Stoves Astoria PS User Manual
Page 19: Travis industries
Text mode
Original mode
Installation, For qualified installers only), Installation example: freestanding masonry chimney | Travis industries | Avalon Stoves Astoria PS User Manual | Page 19 / 42
Pages:
1
…
17
18
19
20
21
…
42
wrong Brand
wrong Model
non readable
See also other documents in the category Avalon Stoves Tools:
Freestanding Stove
(42 pages)
Spokane 1750
(2 pages)
Pellet Burning Stove
(2 pages)
Cedar EF
(42 pages)
Direct Vent Freestanding Stove
(46 pages)
Tree of Life
(4 pages)
Rainier
(44 pages)
CHELAN B-VENT 700 B-VENT
(34 pages)
790
(44 pages)
Avalon Pellet Stove Astoria PS
(42 pages)
Arbor
(38 pages)
Wood Burning Stove & Insert
(24 pages)
Arbor PS
(42 pages)