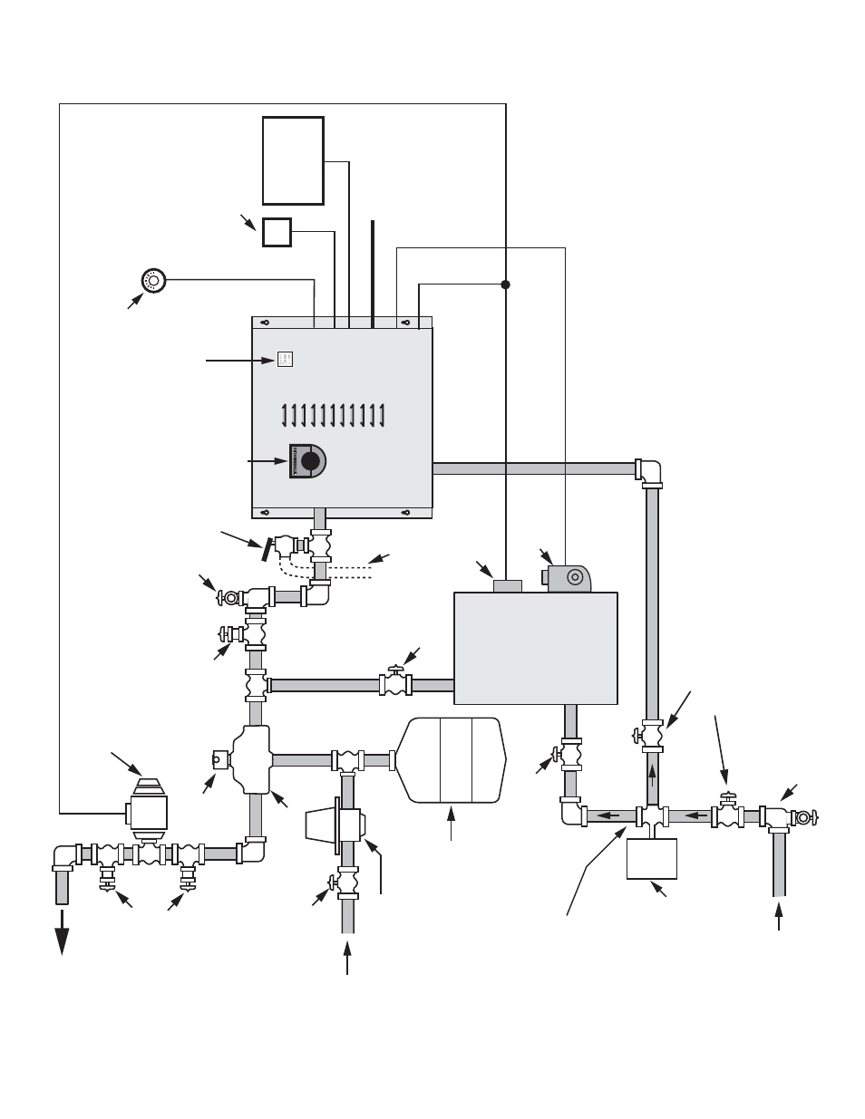
Dual-energy parallel installation (illustration c), Boiler electric – Thermolec Standard Boiler User Manual
Page 21

TEM
PE
RA
T
U
R
E
/
T
EM
PÉ
RA
TU
RE
PR
ES
SU
R
E
/
PR
ES
SI
ON
A
C
B
AIR PURGER
BLEEDING
VA
LV
E
MAINTENANCE
VA
LV
E
SUPPL
Y
T
O
RADIA
T
O
RS
EXP
ANSION
TA
N
K
MOT
ORIZED
VA
LV
E
A-B POR
T
NORMALL
Y
OPEN
A-C POR
T
NORMALL
Y
CLOSED
SHUT
-OFF
VA
LV
E
DUAL-ENERGY
CONTROLLER
SAFETY
V
A
L
V
E
ROOM
THERMOST
A
T
MAINTENANCE
VA
LV
E
MAINTENANCE
VA
LV
E
MAINTENANCE
VA
LV
E
MAINTENANCE
VA
LV
E
BURNER
DRAIN OR
PURGE V
A
L
V
E
OIL
/ GAS
BOILER
DUAL-ENERGY PARALLEL INSTALLATION
(Illustration C)
MV
TEMPERA
TURE /
PRESSURE GAUGE
RETURN FROM
RADIA
T
O
RS
W
A
TER FEED
POWER SUPPL
Y
PRESSURE
REDUCING V
A
L
V
E
PUMP
CONTROL
CIRCULA
TING PUMP
OUTDOOR RESET
SENSOR
BOILER
ELECTRIC
DRAIN
CONNECTION
AUT
OMA
TIC
AIR VENT
LOAD
MANAGEMENT
CONTROL
