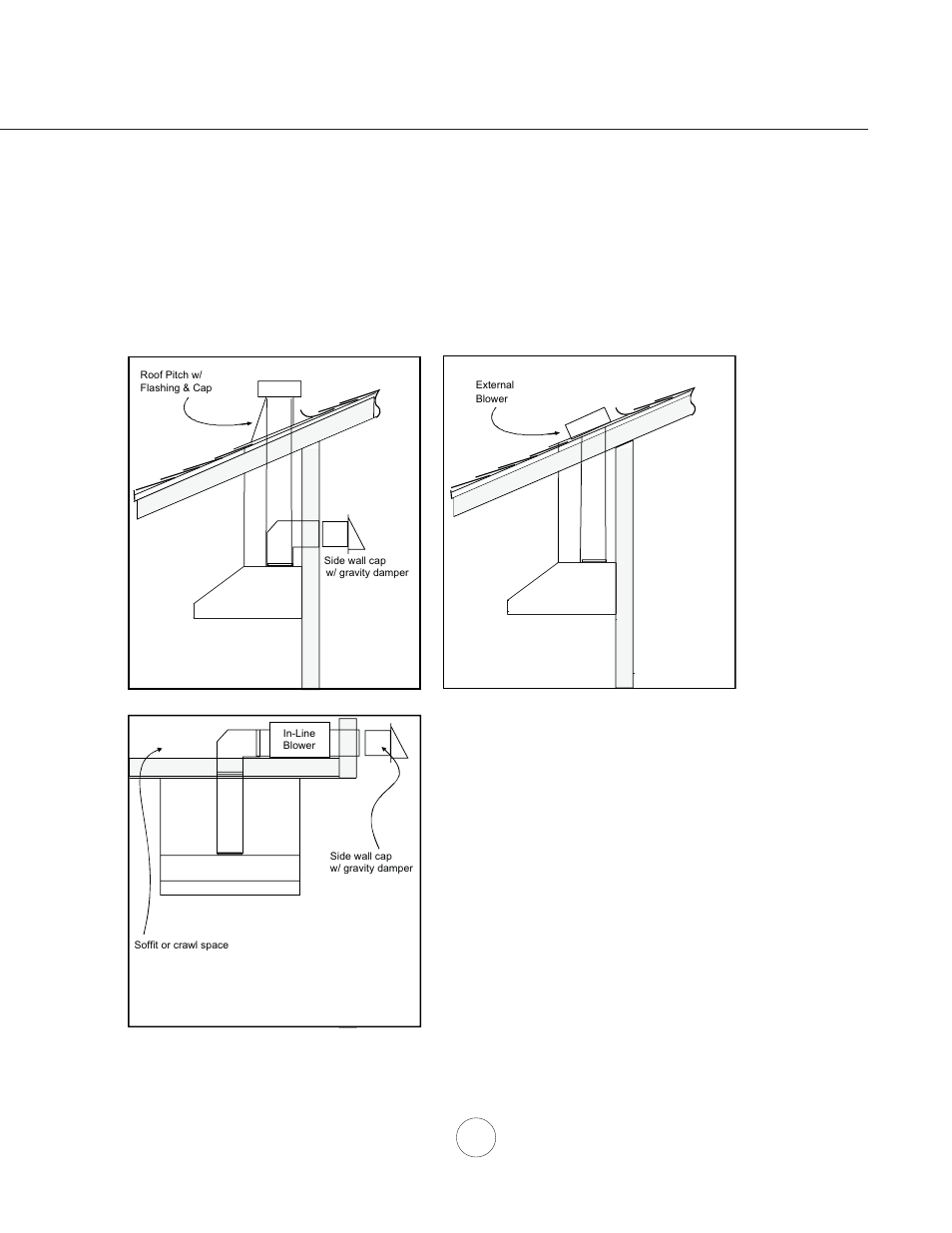
Installation – ducting options – Zephyr Cypress AK7842ASX User Manual
Page 9
                    See also other documents in the category Zephyr Fans:                                                            
                    - ZVE-E30S (19 pages)
 - Duct Cover Extension Z1C-00PN (8 pages)
 - ES1-E30AS (13 pages)
 - TYPHOON AK2100 (19 pages)
 - TYPHOON AK2100 (21 pages)
 - ZVO-E30AG (20 pages)
 - ZVO-E30AG (19 pages)
 - ZGE-E30AS290 (22 pages)
 - ZGE-E30AS290 (52 pages)
 - AK11365 (22 pages)
 - EGL-E30AS (21 pages)
 - Layers Wall ALA - E42ABX (2 pages)
 - ARC AHZ-M90ABX (22 pages)
 - Duo Wall ADU - M90ASX (2 pages)
 - Surface Wall ASU - E42ASX (27 pages)
 - CPA-E42ASX (27 pages)
 - COK-E36SX (23 pages)
 - APN-M90AWX (2 pages)
 - ZSV-E30AS (7 pages)
 - Duct Cover Extension Z1C-00LL (12 pages)
 - Willow AK8800AS (17 pages)
 - Z1C-01TI (8 pages)
 - Adjustable Depth Liners AK088xAS (2 pages)
 - AK7500ASX (23 pages)
 - AHZ-M90ABX (22 pages)
 - AK8000AS (7 pages)
 - ARC AHZ-M90ARX (2 pages)
 - Willow AK8800AG (2 pages)
 - ATI-M90ASX (2 pages)
 - ALL-M90ABX (25 pages)
 - CTP-E 48SX (23 pages)
 - Surface Wall ASU - M90ASX (2 pages)
 - EOT-E48ASX (22 pages)
 - Cypress AK7836ASX (2 pages)
 - ALL-E42AW X (2 pages)
 - ZNA-E42S (21 pages)
 - CBE-1000 (5 pages)
 - Duct Cover Extension Z1C-00LA (8 pages)
 - ZMI-M90S (15 pages)
 - Pattern Glass AHG-00BL (12 pages)
 - ARC Z1C-00SL (6 pages)
 - Z1C01ML (4 pages)
 - ZTO-M795 (17 pages)
 - ASL-E42ASX (23 pages)
 - ASL-E48ASX (2 pages)
 
