Thomas & Betts LDAP 1200 User Manual
Page 5

Form RZ-NA-I-LDAP, P/N 207733 (Rev 2), Page 5
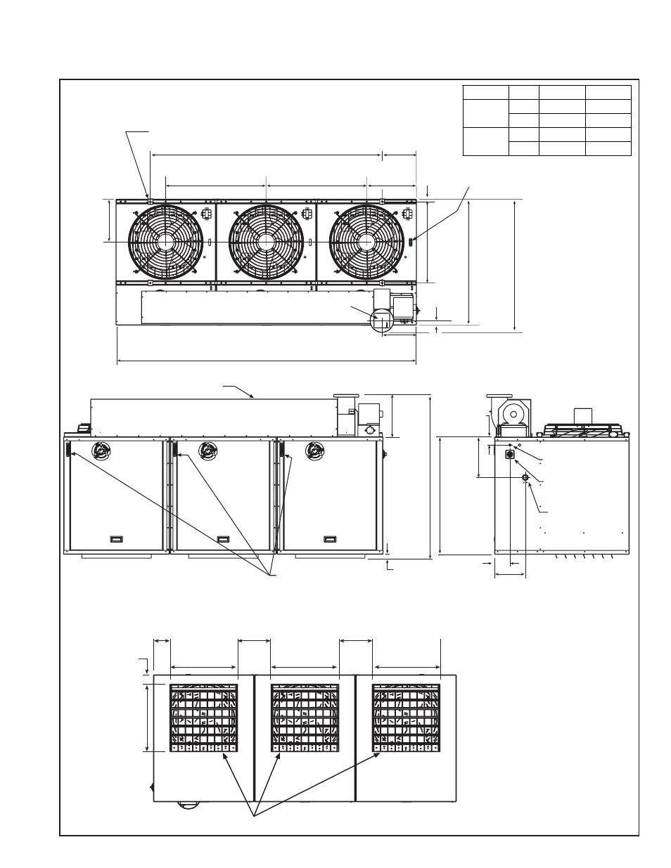
FIGURE 1B - Model LDAP800 and Model LDAP1200
A Model LDAP1200 with three heat sections is illustrated. A Model LDAP800 has two heat sections. A Model LDAP800
is the same layout as illustrated less the middle heat section.
DISCHARGE OPENING
BOTTOM VIEW
23
(584mm)
3-1/4
(83mm)
5-5/8
(143mm)
11-3/4
(298mm)
23
(584mm)
23
(584mm)
23
(584mm)
11-3/4
(298mm)
NOTE: If optional
nozzles are added to the
discharge openings, see
dimensions on page 32.
HANGER LOCATION
1/2 - 13 FEMALE THREAD
34-3/4
(883mm)
A
11-7/8
(302mm)
7/8
(22mm)
14-7/8
(378mm)
28-1/8
(714mm)
AIR DESTRATIFICATION
FAN CONTROL
43-1/2
(1,105mm)
1-5/8
(41mm)
46
(1,168mm)
12
(305mm)
ø8 FLUE OUTLET
TOP VIEW
B
34-3/4
(883mm)
17-1/8
(435mm)
Size
A
B
inches
46
69
mm
1168
1753
inches
80
103-3/4
mm
2032
2635
800
1200
COMBUSTION BOX ASSEMBLY
13-3/4
(349mm)
53
(1,346mm)
1-1/4
(32mm)
THERMOSTAT
CONNECTIONS
FRONT VIEW
RIGHT SIDE VIEW
LINE VOLTAGE
CONNECTION
DISCONNECT
SWITCH
1 NPT
GAS CONNECTION
38
(965mm)
13-1/8
(333mm)
2-5/8
(67mm)
5
(127mm)
9-7/8
(251mm)
1-1/4 NPT
