ProForm 831.24646.0 User Manual
Page 7

7
3. With the help of a second person, carefully tip
the treadmill onto its right side.
Do not fully fold
the treadmill until it is completely assembled.
Insert the other Extension Leg (89) into the base
of the Uprights (84). Hold an Extension Leg
Nut (67) in the bottom of the Extension Leg, and
thread a 2.25" Extension Leg Bolt (92) into the
top of the Extension Leg. Next, thread a 2.5"
Extension Leg Bolt (65) into the bottom of the
Extension Leg.
Firmly tighten the Extension
Leg Bolts.
Slide the other Front Endcap (44) onto the base
of the Uprights (84). Partially tighten a Front
Endcap Screw (14) into the Front Endcap and
the base.
65
44
84
14
92
67
3
4. Attach two Base Pads (82) to the base of the
Uprights (84) with two 1" Tek Screws (83).
84
83
83
82
82
4
89
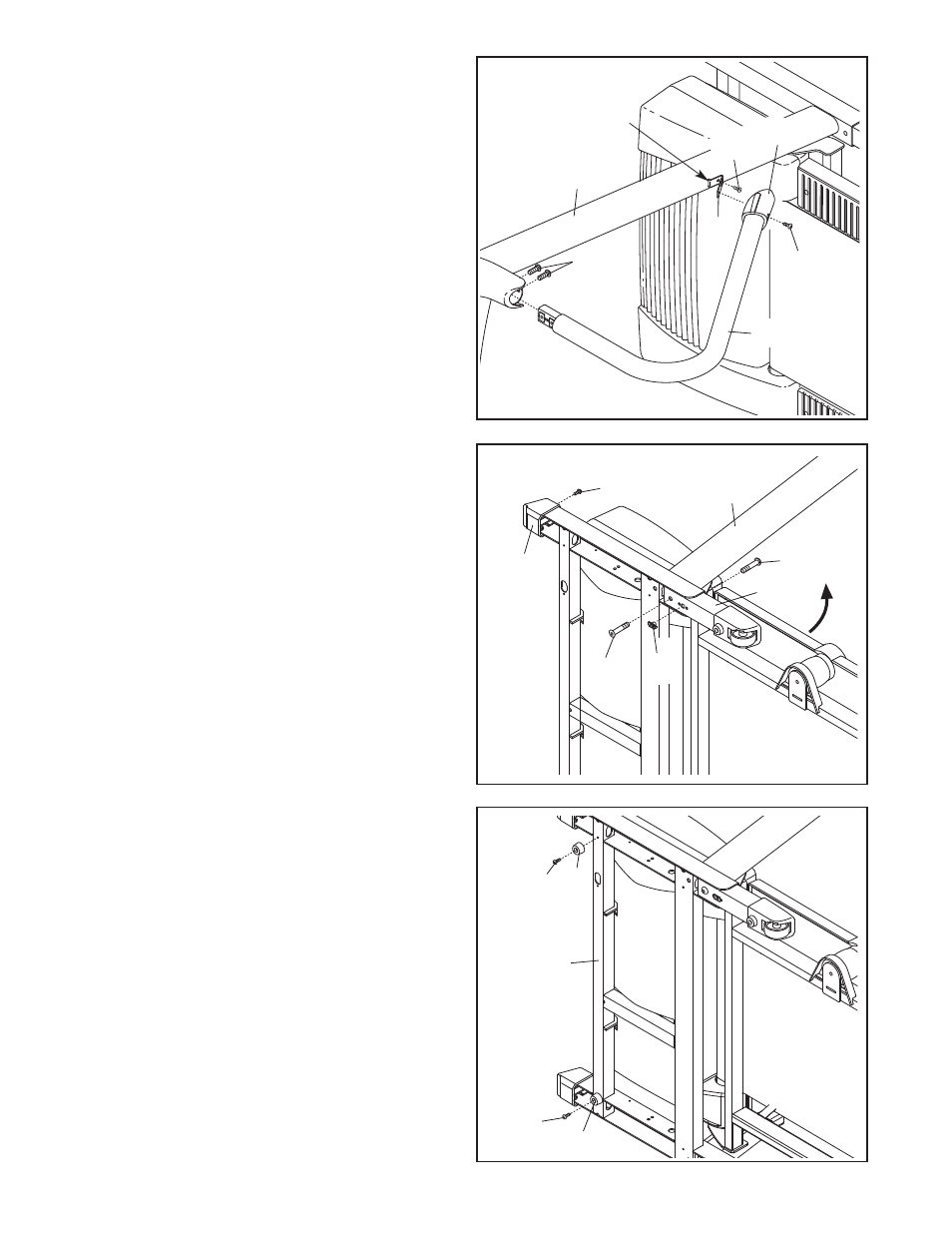
2. Insert the tab on one of the Handrail Brackets (42)
into the indicated slot in the right Upright (84).
Attach the Handrail Bracket with a Screw (3).
Slide a Handrail Cap (8) onto the lower end of a
Handrail (20). Make sure that the Handrail Cap is
oriented as shown.
Insert the top of the Handrail (20) into the tube at
the top of the right Upright (84), and slide the
Handrail Cap (8) over the Handrail Bracket (42).
Attach the top of the Handrail to the right Upright
with two Handrail Bolts (64);
start both Handrail
Bolts but do not tighten them yet. Then, at-
tach the Handrail to the Handrail Bracket with a
Screw (3). Tighten the two Handrail Bolts.
2
Slot
42
20
84
3
8
3
64
