Directory
Brands
KITCHENAID manuals
Refrigerators
2307890A
Manual

KITCHENAID 2307890A User Manual

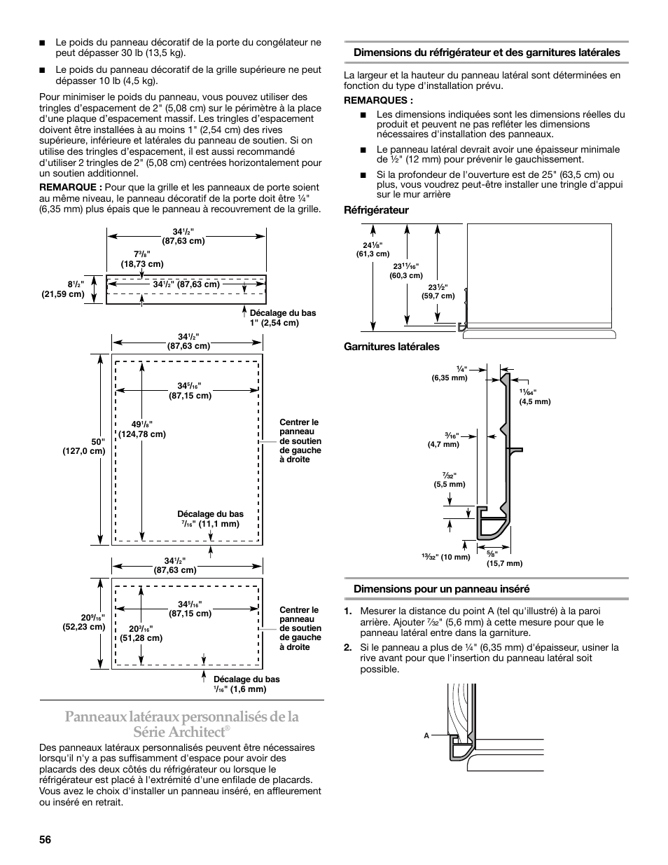
Page 56

  • Text mode
  • Original mode
KITCHENAID 2307890A User Manual | Page 56 / 68 KITCHENAID 2307890A User Manual | Page 56 / 68
Pages: 1 … 54 55 56 57 58 … 68
  • wrong Brand
  • wrong Model
  • non readable
See also other documents in the category KITCHENAID Refrigerators:
  • KBFO42FTX02 (20 pages)
  • KBLC36FKS01 (18 pages)
  • KBLS22KVSS00 (15 pages)
  • KBLS36FKT02 (18 pages)
  • 2309069A (76 pages)
  • KBLS22EVMS00 (16 pages)
  • DHT-486XP (34 pages)
  • KBCS24LSBS02 (6 pages)
  • W10206411A (46 pages)
  • WF-LC400V (52 pages)
  • W10162440A (20 pages)
  • KBFS20EVWH00 (15 pages)
  • Bottom-Mount Built-In Refrigerator (52 pages)
  • Bottom-Mount Built-In Refrigerator (84 pages)
  • KBFS25EVMS00 (15 pages)
  • KBLS36FKB01 (18 pages)
  • 2315184A (48 pages)
  • COUNTER DEPTH SIDE BY SIDE REFRIGERATOR (32 pages)
  • COUNTER DEPTH SIDE BY SIDE REFRIGERATOR (36 pages)
  • W10162467A (47 pages)
  • 2318586 (44 pages)
  • SIDE BY SIDEBUILT-IN REFRIGERATOR (64 pages)
  • 2320680B (80 pages)
  • KBLS20EVMS00 (17 pages)
  • KBLS19KTSS00 (14 pages)
  • KBFS20ETBL00 (15 pages)
  • KBFS25EVMS3 (15 pages)
  • 2300274 (32 pages)
  • W10167098A (42 pages)
  • BUILT-IN REFRIGERATOR (64 pages)
  • KBFL25ETBL00 (15 pages)
  • T2WG2L (46 pages)
  • KBLS20ETSS11 (17 pages)
  • 2308392 (44 pages)
  • Overlay Model Beverage Center (40 pages)
  • KBCO24LSBX00 (5 pages)
  • KBLS22EVMS1 (17 pages)
  • W10233586 (10 pages)
  • SIDE BY SIDE BUILT-IN REFRIGERATOR (68 pages)
  • SIDE BY SIDE BUILT-IN REFRIGERATOR (60 pages)
  • Side-by-Side Referigerator (64 pages)
  • KBFS20ETWH01 (15 pages)
  • W10162435A (34 pages)
  • BEVERAGECENTER (32 pages)
Home Brands Popular manuals Recently added
Manuals Directory

© 2012–2025, azmanual.top
All rights reserved.