Dimensions, Installation instructions – GE GN75DNSRSA User Manual
Page 4

4
Installation Instructions
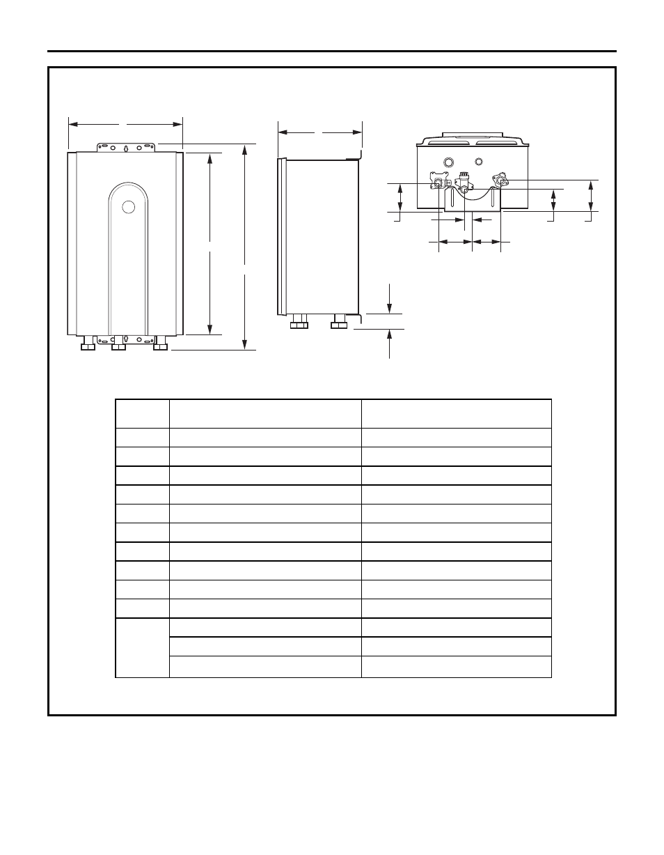
DIMENSIONS
*This is the minimum dimension from the wall. The wall bracket is adjustable to allow an additional 1.57 inches (40 mm).
GN75/GN94/GP94DNSRSA
DIM.
DESCRIPTION
IN. (MM)
A
Width
14 (355.6)
B
Depth
9
5
⁄
8
(244.5)*
C
Height – Unit
22
7
⁄
8
(582)
D
Height – with brackets
25
1
⁄
2
(647.7)
E
Hot Water Outlet – from wall
3
5
⁄
8
(91)*
F
Hot Water Outlet – from center
4
5
⁄
16
(110)
G
Cold Water Inlet – from wall
2
13
⁄
16
(70)*
H
Cold Water Inlet – from center
1
1
⁄
8
(27)
I
Gas Connection – from wall
3
7
⁄
8
(99)*
J
Gas Connection – from center
3
1
⁄
2
(89)
From base to gas connection
1
5
⁄
8
(40)
K
From base to cold connection
2 (50)
From base to hot connection
1
5
⁄
8
(41)
A
C
D
K
B
E
H
F
J
G
I