Directory
Brands
GE manuals
Water boiler
GN75DNSRSA
Manual

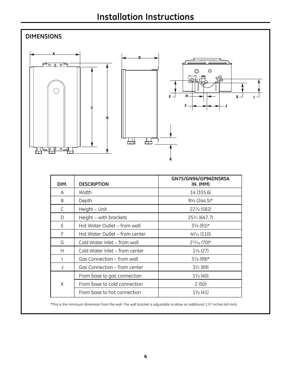
Dimensions, Installation instructions – GE GN75DNSRSA User Manual

Page 4

  • Text mode
  • Original mode
Dimensions, Installation instructions | GE GN75DNSRSA User Manual | Page 4 / 28 Dimensions, Installation instructions | GE GN75DNSRSA User Manual | Page 4 / 28
Pages: 1 2 3 4 5 6 … 28
  • wrong Brand
  • wrong Model
  • non readable
See also other documents in the category GE Water boiler:
  • GN94DNSRSA (5 pages)
  • AP13204-4 (28 pages)
  • GEH50DNSRSA (68 pages)
  • Powervent AP13787 (36 pages)
  • JBP15DM (2 pages)
  • GEH50DXSRGA (68 pages)
  • GN94ENSRSA (16 pages)
  • GE30T06MAG (20 pages)
  • AP12169-5 (20 pages)
  • JBS15M (2 pages)
  • GP94ENSRSA (4 pages)
  • GN75ENSRSA (24 pages)
Home Brands Popular manuals Recently added
Manuals Directory

© 2012–2025, azmanual.top
All rights reserved.