Ensembles de moulures et de panneaux décoratifs – GE 49-60612 User Manual
Page 60

60
So
ut
ie
n
au
co
ns
om
m
at
eu
r
Co
ns
ei
ls
d
e
dé
pa
nn
ag
e
Fo
nc
tio
nn
em
en
t
M
es
ur
es
d
e
sé
cu
rit
é
In
st
al
la
tio
n
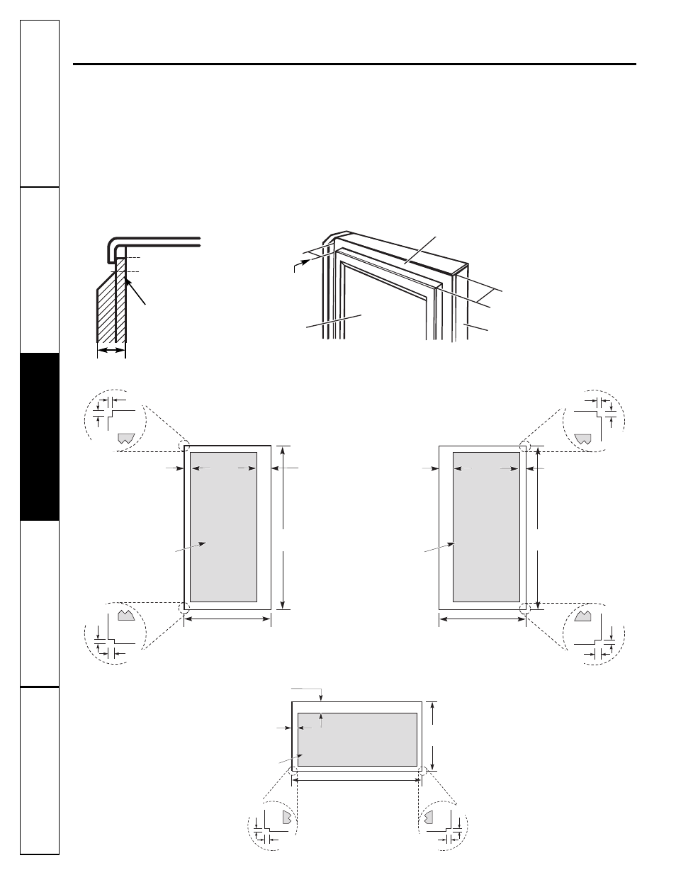
Ensembles de moulures et de panneaux décoratifs.
Dimensions pour les panneaux en bois sur mesure
Panneaux de 19 mm (3/4 po) ou en relief
Vous pouvez utiliser un motif de panneau en relief vissé ou collé à un panneau épais de 6 mm (1/4 po) ou un panneau toupillé
de 19 mm (3/4 po). La partie en relief du panneau doit être fabriquée de manière à laisser un espace libre d’au moins 5,1 cm
(2 po) du côté de la poignée pour permettre aux doigts d’entrer.
Les panneaux plus épais que 6 mm (1/4 po), pouvant aller jusqu’à un maximum de 19 mm (3/4 po) nécessiteront que
le périmètre extérieur du panneau de 8 mm (5/16 po) ne soit pas plus épais que 6 mm (1/4 po).
Limites de poids pour les panneaux sur mesure :
Compartiment réfrigération max. 4,5 kg (10 lbs) pour chaque porte
Compartiment congélation max. 8 kg (18 lbs).
5,1 cm (2 po)
Espace libre
côté poignée
Panneau
décoratif
Porte du compartiment
réfrigération
6 mm (1/4 po)
Envers épais
19 mm
(3/4 po)
Panneaux plus épais que 6 mm (1/4 po)
6 mm (1/4 po) max
19 mm (3/4 po)
8 mm (5/16 po)
Porte de droit du compartiment
réfrigération
Porte du compartiment
congélation
Haut, droit
et bas
42,9 cm (16 29/32 po)
Min 8 mm
(5/16 po) à
épaisseur de
6 mm (1/4 po)
Partie du
panneau en
relief
Min 51 mm
(2 po) à
épaisseur de
6 mm (1/4 po)
Côté de la poignée
66,3 cm
(26 3/32 po)
Min 51 mm (2 po) à
épaisseur de 6 mm (1/4 po)
Côté de la poignée
Haut, gauche
et bas
Min 8 mm (5/16 po) à
épaisseur de 6 mm (1/4 po)
91,2 cm (35 29/32 po)
Partie du
panneau
en relief
98,9 cm
(38 15/16 po)
Porte de gauche du
compartiment
réfrigération
Haut, gauche
et bas
42,9 cm (16 29/32 po)
Min 8 mm
(5/16 po) à
épaisseur de
6 mm (1/4 po)
Partie du panneau
en relief
Min 51 mm
(2 po) à
épaisseur de
6 mm (1/4 po)
Côté de la poignée
98,9 cm
(38 15/16 po)
3 mm
(1/8 po)
3 mm
(1/8 po)
3 mm
(1/8 po)
3 mm
(1/8 po)
3 mm
(1/8 po )
6 mm
(1/4 po)
6 mm
(1/4 po)
6 mm
(1/4 po)
3 mm
(1/8 po)
6 mm
(1/4 po)
6 mm
(1/4 po)
6 mm
(1/4 po)