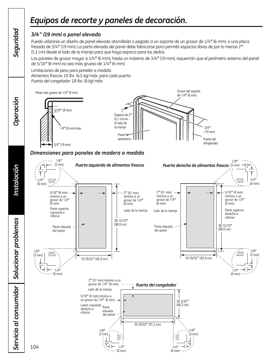
Equipos de recorte y paneles de decoración – GE 49-60612 User Manual
Page 104
This manual is related to the following products:
See also other documents in the category GE Refrigerators:
- ENERGY STAR PFSS0MFZSS (2 pages)
- 30 (136 pages)
- 162D3907P004 (16 pages)
- Bottom-Freezer Built-In Refrigerators (20 pages)
- 200D8074P050 (132 pages)
- CustomStyle GSC23LGQWW (3 pages)
- Energy Star PSHS6YGZ (2 pages)
- 162D3941P005 (112 pages)
- FREE-STANDING SIDE-BY-SIDE STAINLESS STEEL ZFSB23D SS (12 pages)
- ENERGY STAR PSHS9PGZ (2 pages)
- ZISW/B360DX (7 pages)
- 6 Cubic Foot (16 pages)
- 49-60451 (40 pages)
- B420DX (7 pages)
- ENERGY STAR PFSF5NFZCC (2 pages)
- 200D26000P022 (40 pages)
- GBSC3HBX (2 pages)
- 11 (20 pages)
- ENERGY STAR PFSS5PJZ (2 pages)
- CSCP5UGXSS (2 pages)
- 23 (132 pages)
- 23 (112 pages)
- 10 (16 pages)
- GBSL0HCXRLS (2 pages)
- 2 Cubic Foot Models (16 pages)
- 200D8074P036 (104 pages)
- Energy Star PFSF2MJY (2 pages)
- 49-60327 (16 pages)
- Energy Star GSHL6KGZLS (2 pages)
- 197D4613P004 (48 pages)
- 24 (32 pages)
- Energy Star PSHF6YGZBB (2 pages)
- GBC12IAXRSS (2 pages)
- GBS20HBS (2 pages)
- Energy Star PFSF0MFZBB (2 pages)
- ENERGY PROFILE PDCS1NCZ (2 pages)
- 49-6514 (15 pages)
- Energy Star PSHF9PGZ (2 pages)
- ENERGY STAR GFSL2KEY (2 pages)
- GCF23KGW (3 pages)
- GBSL3HCXRLS (2 pages)
- ZISS420NXSS (4 pages)
- ZIS360NX (24 pages)
- ZISS420NXSS (2 pages)
- ZIS360NX (32 pages)