Frymaster Gas Rethermalizers FBRA18 Series User Manual
Page 54

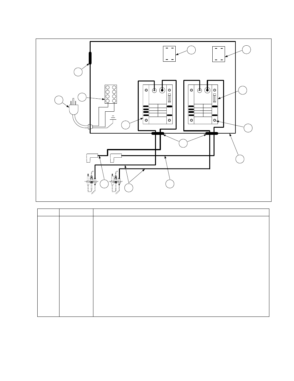
7-3
7.3
Control Box Assembly and Associated Parts, FBR18/ FBRA18
BLA
C
K
WH
IT
E
LEFT IGNITOR
RIGHT IGNITOR
5
6
7
8
4
3
2
1
25V
(G
ND)
ALAR
M
VALV
E
GND
(B
URNER)
25V
25V
(B
URNER)
GND
VALV
E
ALARM
(GN
D)
25V
LOA
D
LINE
12
12
0
12
0
24
LI
N
E
LO
A
D
GREEN
5
4
4
2
RIGHT
LEFT
7
6
8
10
9
9
2
3
1
ITEM PART
#
COMPONENT
1
900-4509
Control Box Mounting Base
2
807-1006
Ignition Module, 4-Second Honeywell
3
809-0446
Spacer, .26-inch x .50-inch
4
807-1706
Cable, Ignition, 36-inch
5
806-5541
Wire, Flame Sensor
6
807-0855
Transformer, 120V-12V, 20VA, 50/60 Hz
7
807-0800
Transformer, 120V-24V, 50VA, 50/60 Hz
8
807-0067
Block, 8-pin Terminal
9
810-0045
Bushing, .875-inch
10
806-5332
Cord, Electrical Power
*
900-4508
Control Box Heat Shield
*
900-4510
Control Box Side
*
806-9334
Harness, 12-pin Wiring
*
806-9335
Harness, 9-pin Wiring
* Not illustrated.