
Instruction Bulletin
Appendix B Rev. 2.3
May 2005
B-2 Appendices
Rosemount Analytical Inc. A Division of Emerson Process Management
World Class 3000
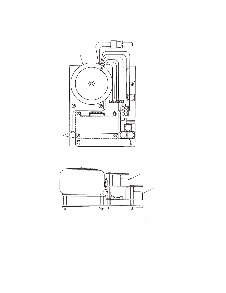
TRANSFORMER
TRANSFORMER
TERMINAL
COVERS
FRONT
SIDE
TERMINAL STRIP
(FROM ELECTRONICS)
TERMINAL STRIP
(FROM PROBE)
35730002
Figure B-2. Heater Power Supply, Interior