30” grill dimensions, 30” grill island preparation, With optional grill cart) – DCS 30" Professional Grill OGP30iN User Manual
Page 2

Summer 2008 41
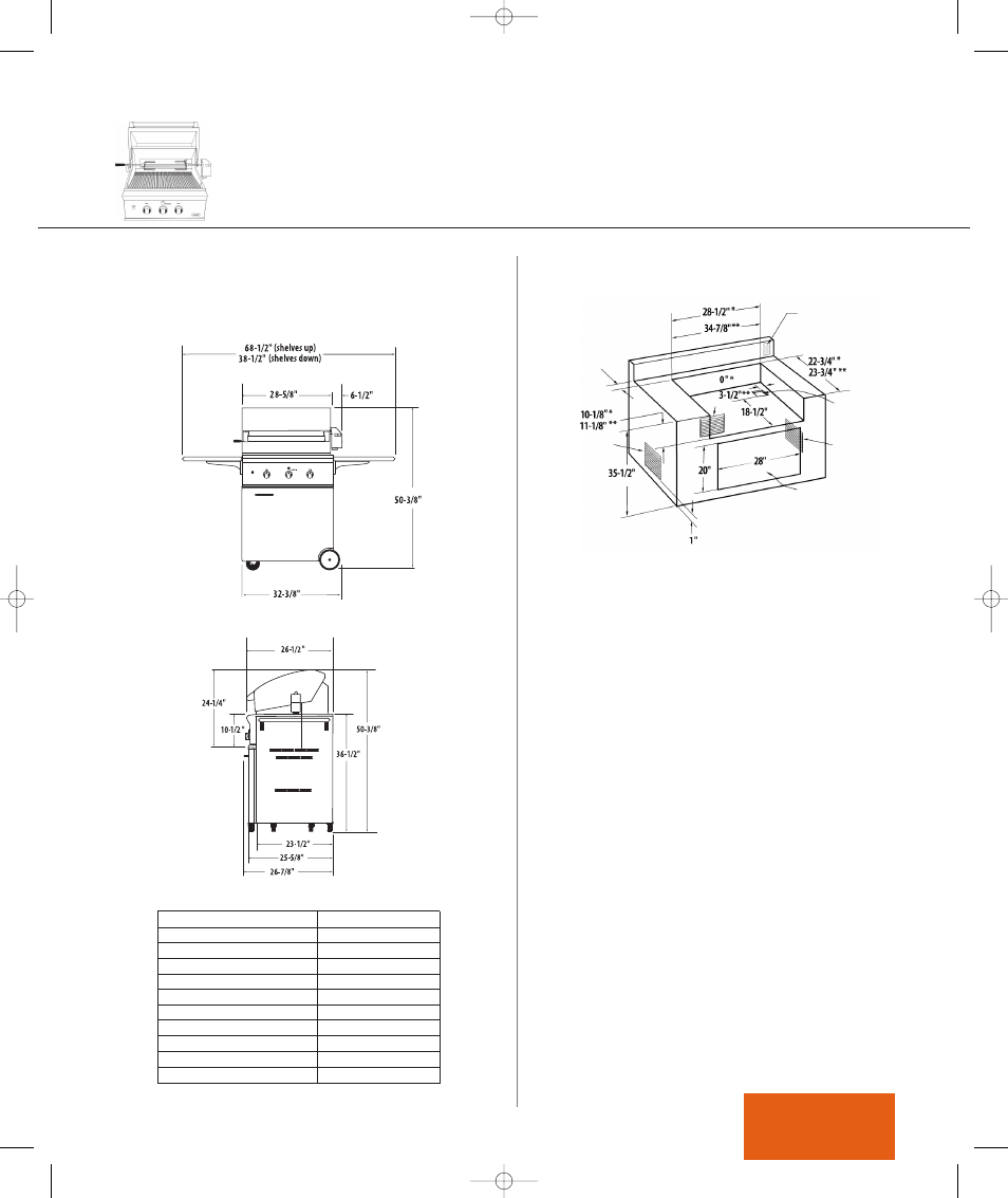
30” Grill Dimensions
(with optional grill cart)
Grill Model: BGB30-BQR
Cart Models: BGA30-CSS/CAD-30
MODEL NUMBER
BGB30-BQR
TOTAL COOKING AREA
760 SQ. INCHES
PRIMARY COOKING AREA
(GRILL AREA)
565 SQ. INCHES
SECONDARY COOKING AREA
(WARMING RACK)
195 SQ. INCHES
GRILL BURNERS
2 @ 25,000 BTU/HR
OPTIONAL SIDE BURNER
(CART MOUNT)
1 OR 2 @ 17,000 BTU/HR
INTEGRATED ROTISSERIE BURNER
1 @ 14,000 BTU/HR
GRILL GRATES
STAINLESS STEEL
SHIPPING WEIGHT
(GRILL HEAD)
164 LBS.
SHIPPING WEIGHT
(OPTIONAL CART)
95 LBS.
SHIPPING DIMENSIONS
(HEIGHT X WIDTH X DEPTH)
28” X 32-1/2” X 29-1/2”
30” Grill Island Preparation
Grill Model: BGB30-BQR
Ordering Data:
Please specify gas type (natural or propane) when ordering
Gas Requirements:
Natural
• 1/2" NPT male with a 3/8" flare adapter
• Operational Pressure: 4” W.C.
• Supply Pressure: 6" to 9” W.C.
Propane
• 1/2" NPT male with a 3/8" flare adapter
• LP hose with a quick disconnect & fitting are shipped connected
• Operational Pressure: 10” W.C.
• Supply Pressure: 11" to 14” W.C.
Power Requirements:
• 120V 60Hz for models with Rotisserie Motor.
Island Ventilation Requirements:
It is recommended that adequate ventilation holes must be
provided in the base of an enclosure in the event of a gas leak.
Grill Placement:
DO NOT build grill under overhead unprotected combustible
construction. Use only in well-ventilated areas. These units are
for outdoor use only. If located in a consistently windy area
(oceanfront, mountaintop, etc.) a wind break will be required.
Conversion Kits:
NG to LP and LP to NG conversion kits are available from your dealer.
Accessories
• Stainless Steel Grill Cart (CAD-30, BGB30-CSS)
• Single or double side burners for built-in application
• Stainless Steel Access Doors for built-in application
• Stainless Steel Access Drawers for built-in application
• Insulated Jacket for built-in application
• Grilling Tool Set
• Brazilian Cherry Chopping Board that fits in cart side-shelf
• Drop-on Griddle Plate
• Vinyl Grill Cover
• Wok and Wok Ring for use on side burners
access doors
(ADN20x30)
access drawers
(ADR 30)
Max.
4” x 4” opening for
gas supply line
Note: Locate electrical
service on the right hand
side for rotisserie motor
connection.
3” to non-combustible
construction/
min. for lid clearance
12” min. combustible
construction
BGB30-BQR
Vent
Vent
Vent
* Standard cut-out dimensions for non-combustible enclosure
** Insulated jacket cut-out dimensions for combustible enclosure
Island installation to use minimum of 3 vents providing
10 square inches per vent (typical).
We encourage you to find out more about these features and learn how they can
make your cooking experience more enjoyable by visiting our learning page at:
www.dcsappliances.com.
Because of continuing product improvement these specifications are subject to
change without notice.
magalog summer 2008.2.qxd 4/24/08 2:07 PM Page 41
