Pilz PSEN ma1.4a-51/PSEN ma1.4-03mm/ 1unit User Manual
Page 5

- 5 -
`
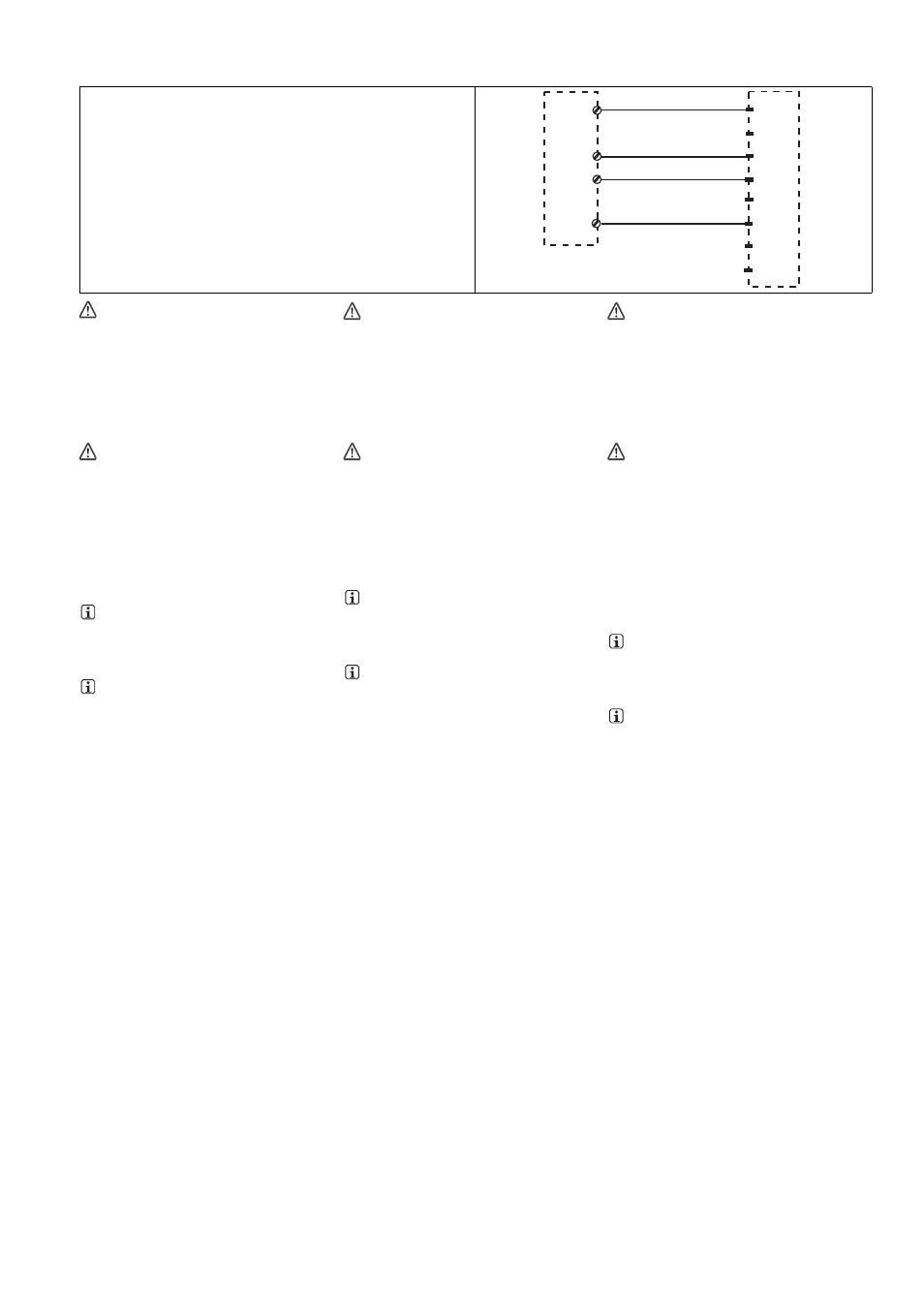
Anschluss an PSS mit oder ohne
SafetyBUS p und PSSu
`
Connection to PSS with or without
SafetyBUS p and PSSu
`
Raccordement au PSS avec ou sans
SafetyBUS p et PSSu
928691211
ACHTUNG!
Die Sicherheitsschalter dürfen an einer PSS
nur mit dem Standardfunktionsbaustein
SB064 oder SB066 betrieben werden.
CAUTION!
The safety switches may only be operated
on a PSS in conjunction with standard
function block SB064 or SB066.
ATTENTION !
Les capteurs de sécurité ne doivent être
utilisés sur un PSS qu'avec le bloc de fonc-
tion standard SB064 ou SB066.
Montage
1095033099
`
Berücksichtigen Sie bei der Montage die An-
forderungen der DIN EN 1088
`
Montieren Sie Sicherheitsschalter und Betä-
tiger parallel gegenüberliegend.
ACHTUNG!
Eine Umgebung mit elektrisch oder magne-
tisch leitfähigem Material kann die Geräte-
eigenschaften beeinflussen. Prüfen Sie die
Schaltabstände und den gesicherten Ab-
schaltabstand.
`
Befestigen Sie Sicherheitsschalter und Betä-
tiger ausschließlich mit Schrauben M4 mit
flacher Kopfunterseite aus nicht magneti-
schen Material (z.B. M4-Zylinderkopf- oder -
Flachkopfschrauben).
INFO
Sichern Sie den Betätiger gegen unbefug-
tes Entfernen und vor Verschmutzung. Ver-
schließen Sie die Montageöffnungen mit
den mitgelieferten Verschlüssen.
INFO
Verschlüsse (1), (2), (3) entsprechen den UL
94 V0-Anforderungen, Verschluss (4) ent-
spricht nicht den UL-Anforderungen.
`
Anzugsdrehmoment max. 0,8 Nm.
`
Beachten Sie unbedingt den Abstand zwi-
schen zwei Sicherheitsschaltern (siehe Tech-
nische Daten).
`
der gesicherte Schaltabstand S
ao
und der
gesicherte Ausschaltabstand S
ar
müssen un-
ter realen Bedingungen überprüft werden.
Sicherheitsschalter und Betätiger
`
von Eisenspänen fernhalten
`
keinen starken Magnetfeldern aussetzen
`
keinen starken Stößen oder Schwingungen
aussetzen
`
nicht als Anschlag benutzen
`
nur für feste Verkabelung
Installation
`
When installing make sure you comply with
the requirements of DIN EN 1088
`
The safety switch and actuator should be in-
stalled opposite each other in parallel.
CAUTION!
The unit's properties may be affected if in-
stalled in an environment containing electri-
cally or magnetically conductive material.
Please check the operating distances and
the assured release distance.
`
Safety switches and actuators should only
be secured using M4 flat head screws made
of non-magnetic material (e.g. M4 cheese-
head or pan head screws).
INFORMATION
The actuator should be protected from un-
authorised removal and from contamina-
tion. Close the mounting holes using the
seals provided.
INFORMATION
Seals (1), (2), (3) meet the requirements of
UL 94 V0; seal (4) does not meet UL re-
quirements.
`
Torque setting max. 0.8 Nm.
`
The distance between two safety switches
must be maintained (see Technical details).
`
The assured operating distance S
ao
and the
assured release distance S
ar
must be tested
under real conditions.
Safety switches and actuators
`
Should be kept away from iron swarf
`
Should not be exposed to strong magnetic
fields
`
Should not be exposed to heavy shock or vi-
bration
`
Should not be used as a limit stop
`
For fixed wiring only
Installation
`
Veuillez tenir compte lors du montage des
exigences de la normes DIN EN 1088.
`
Montez le capteur de sécurité et l'actionneur
l'un en face de l'autre de manière parallèle.
ATTENTION !
Un environnement avec des matériaux
conducteurs de l'électricité ou du magné-
tisme peut affecter les caractéristiques de
l'appareil. Veuillez vérifier les distances de
commutation et la distance de déclenche-
ment de sécurité.
`
Pour fixer le capteur de sécurité et l'action-
neur, utilisez uniquement des vis M4 dans
des matériaux non magnétiques et dont la
tête présente une face inférieure plate
(exemple : vis M4 cylindriques ou à tête pla-
te).
INFORMATION
Assurez-vous que l'actionneur ne puisse
être ni retiré sans autorisation, ni encrassé.
Refermez les ouvertures du montage à
l'aide des fermetures fournies.
INFORMATION
Les fermetures (1), (2), (3) satisfont aux exi-
gences de l'UL 94 VO ; la fermeture (4) ne
satisfait aux exigences UL.
`
Couple de serrage max. 0,8 Nm.
`
Veuillez absolument respecter la distance
entre les capteurs de sécurité (voir les carac-
téristiques techniques).
`
La distance de commutation de sécurité S
ao
et la distance de déclenchement de sécurité
S
ar
doivent être vérifiées dans de réelles
conditions.
Le capteur de sécurité et l'actionneur
`
doivent être éloignés des copeaux métalli-
ques
`
ne doivent pas être exposés à des champs
magnétiques élevés
`
ne doivent pas subir des chocs et vibrations
importants
`
ne doivent pas être utilisés comme butée
`
ne doivent être utilisés que dans un câblage
fixe
Schutztür/safety gate/protecteur mobile
Schaltertyp 3/switchtype 3/type du capteure 3
I0, I1: Eingänge/inputs/entrées
O16, O17: Taktausgänge/test pulse outputs/sorties
impulsionelles
I0
O16
O17
I1
1
2
3
4
5
6
weiß/white/blanc
rosa/pink/rose
gelb/yellow/ambre
7
8
grün/green/vert
