Cómo instalar la unidad, Requisitos de la ventana – LG LP6011ER User Manual
Page 29
Attention! The text in this document has been recognized automatically. To view the original document, you can use the "Original mode".

Cómo instalar la unidad
1J
Para prevenir la vibración y ei mido, asegúrese que
la unidad esté instalada con seguridad y firmeza.
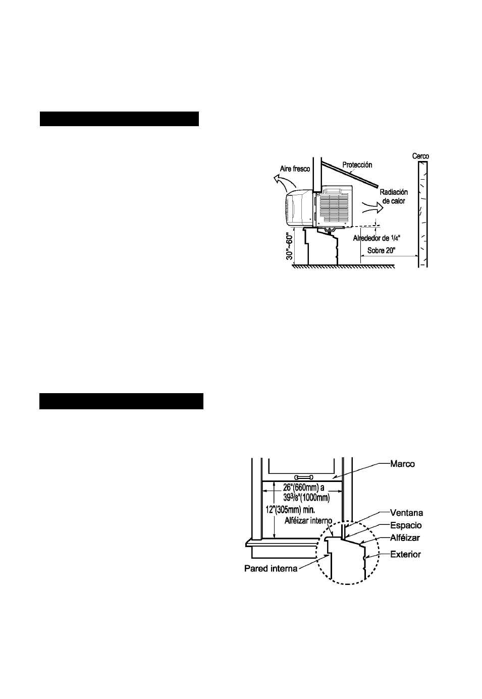
^ Instale la unidad donde la luz del sol no caiga
directamente en la misma.
^
La parte exterior del gabinete debe extenderse
hacia afuera, como por ejemplo un cerco o una
pared, dentro de los 20" desde la parte posterior
del gabinete porque evitará la radiación de calor
del condensador.
La restricción del aire exterior reduce en gran parte
la eficiencia de enfriar del acondicionador de aire.
PRECAUCIÓN: Todos los ¿labes laterales del gabinete deben permanecer expuestos a la parte exterior de la
estructura.
Instale la unidad un poco inclinada para que la parte posterior quede ligeramente más baja que el frente
(alrededor de 1/4"). Esto forzará al agua condensada a fluir hacia el exterior.
^ Instale la unidad con el fondo aproximadamente 30"~60" por encima del nivel del piso.
Requisitos de la ventana
NOTA: Todas las piezas de soporte deben estar aseguradas con madera fuerte, mampostería, o metal.
• Esta unidad está diseñada para ser instalada en
ventanas dobles basculantes estándar con amplitud de
apertura real desde 26" a 39-3/8".
• Las hojas inferiores y superiores de la ventana deben
abrirse lo suficiente para permitir una luz vertical de
12" desde la parte inferior de la hoja superior hasta el
asiento de la ventana.
