Wheel alignment, Arrangements 1 and 9, Installation —q fan – Trane QFNA-IOM-1 User Manual
Page 15

Wheel Alignment
Arrangements 1 and 9
Manually rotate the fan wheel to be
sure that it turns freely. The tip
clearances are set in the factory and
normally do not require readjustment.
to determine if adjustment is
required, measure and record the
clearances between wheel and
housing at six equally spaced
intervals around the inside of the fan
housing. Clearances should be
measured at the leading and lagging
edge of the blade tip. If adjustment is
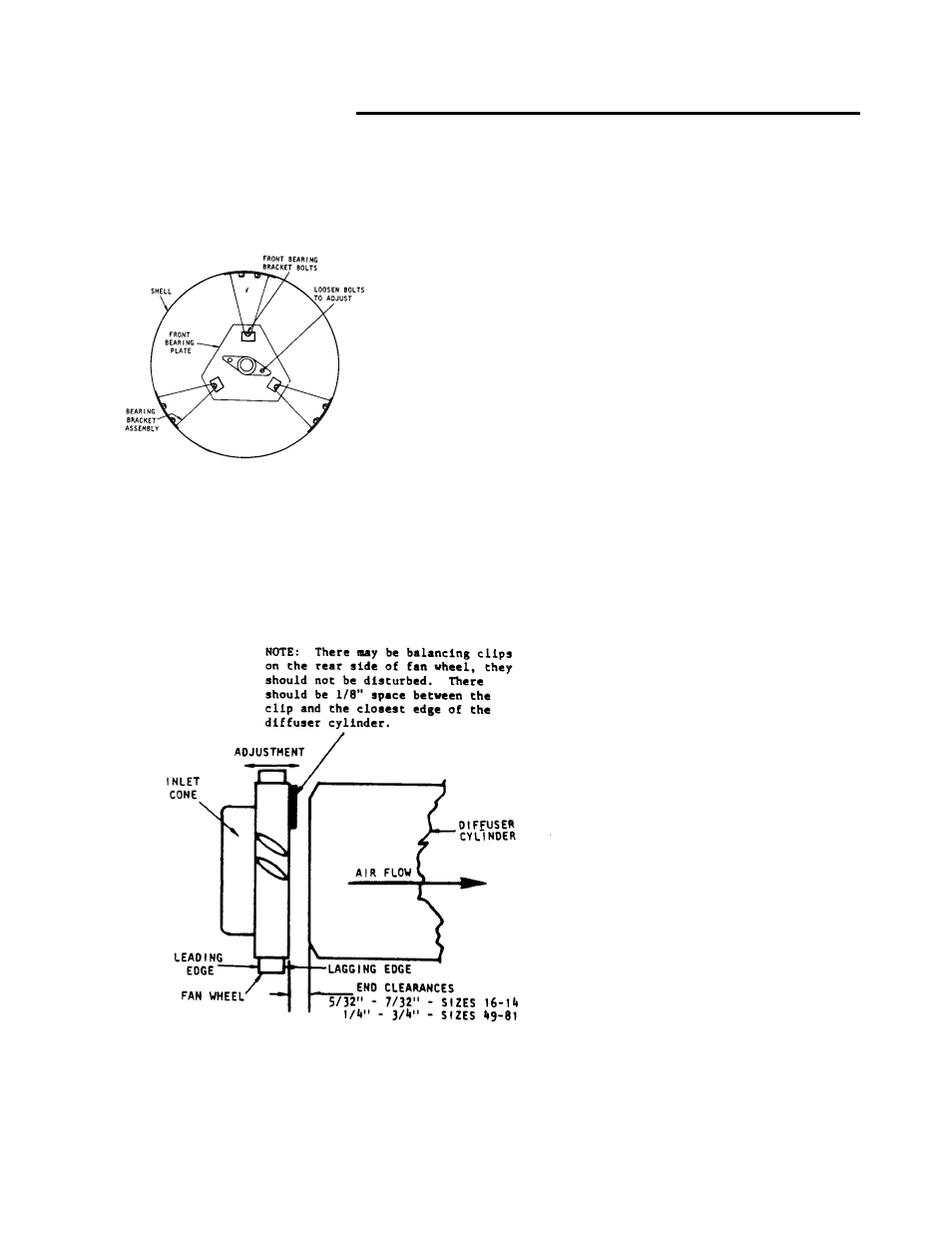
necessary loosen the front bearing
bolts and readjust bearing location.
See Figure 10. On sizes 16 through
44, additional adjustment can be
obtained by loosening from bearing
bracket and readjusting position.
Retighten all fasteners and torque
per Tables 4 and 5.
Tip clearances are given in Table 3
and bolt torques in Table 4 and 5.
Check the spacing between the rear
edge of the fan wheel and diffuser
cylinder. If this spacing is not as
shown in Figure 11, move the fan
wheel on the shaft for proper
measurement. To achieve this,
loosen the setscrew(s) and move the
fan wheel out sufficiently to insert two
pieces of the correct thickness bar
stock, one at each side of the wheel.
Move wheel gently against bar stock
pieces. Tighten setscrew and remove
bar stock pieces. See Figure 11.
Installation —Q Fan
QFNA-IOM-1
15
Figure 11—Clearance Fan Wheel Diffuser
Figure 10—Front Bearing Bracket
