Life Fitness Arctic Silver 93X-0XXX-05 User Manual
Page 17

17
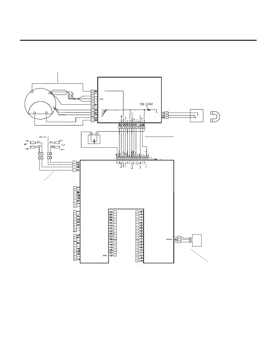
ARCTIC SILVER QUIET DRIVE 93X
93X-0XXX-05
Cables
S/N XHF074003991 – XHF074204255
Power Control Board
B084-92218-D002
Upper Console Board
A084-92219-A031
Vce
GND
RED
WHITE
BLACK
P12
19 POS.
UPPER KEYPAD
GND
St4
P7
3POS.
MINI FIT JR.
POLAR RECEIVER
WHITE
BLACK
BLACK
WHITE
4POS. MINI FIT JR.
P4
RT SIGNAL
GND
GND
LT SIGNAL
P9
RJ45
CSAFE
P10
RJ45
CARDIO
TH.
P11
10POS.
BACKGROUND
DEBUG
HOR.
NC
NC
RXD
TXD
Vcardio
CTS
GND
Vsysc
NC
NC
RXD
TXD
Vcardio
CTS
GND
Vsysc
DS
BERR
GND
BKPT
GND
FREEZE
RESET
Dsi
Vcc
Dsc
P1
17POS.
LOWER KEYPAD
St5
St6
St4
St6
START
GND
GND
GND
IO
St2
St2
St3
St1
St3
St1
START
GND
MAGNET
REED SWITCH
N.C.
N.C.
COM
3 POS. MINI FIT
P3
GND
Vbat
RPM_REED
P2
12POS.MNL
RPM_ALT
VoltR
VoltR
VoltR
Volt
Volt
GND
GND
GND
GND
FIELD
ORANGE
AC TAP
FIELD
EXC
FIELD
RTN
GND
Valt
YELLOW
BLK/WHT
BLK
BLK
BLK
POWER RES.
2 x .75 OHM
240W
RED/BLK
RED/BLK
RED/BLK
GREEN
GREEN
GREEN
6V
RED
BLK/PURPLE
P1
13POS.KK-156
I6
I5
I4
I2
I1
I3
I3
IO
I2
I4
I5
St8
I6
St5
St6
I1
Main Cable
AK62-00093-0000
Power Control Cable
AK62-00092-0000
Console HR
Cable
AK47-00028-0000
User Arm HR Cables
AK47-00029-0000
Polar w/latch Conn.Cable
AK39-00063-0000
PolarPCB w/header Cable
AK39-00064-0000
