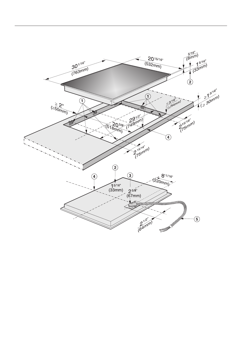
Installation, Installation dimensions – Miele KM5656 User Manual
Page 35
See also other documents in the category Miele Hobs:
- 24 Inch Electric Cooktop Operating and Installation Instructions (56 pages)
- 24 Inch Electric Cooktop Operating and Installation Instructions (56 pages)
- KM421 (12 pages)
- INDUCTION WOK CS 1223 (40 pages)
- KM5951 (84 pages)
- KM 344 KM 342 (24 pages)
- CERAMIC COOKTOP WITH INDUCTION KM 5753 (52 pages)
- KM424 (24 pages)
- KM 3474 (40 pages)
- CombiSet 15 Inch Electric Barbeque Grill Operating and Installation Instructions (40 pages)
- CS1012 (44 pages)
- KM 5758 (52 pages)
- KM5773 (52 pages)
- KM 451 (36 pages)
- KM 342 (20 pages)
- 36 Inch Electric Cooktop Operating and Installation Instructions (36 pages)
- 36 Inch Electric Cooktop Operating and Installation Instructions (36 pages)
- CombiSet 12 Inch Gas Cooktop Operating and Installation Instructions (48 pages)
- KM 404 (20 pages)
- KM 344 (24 pages)
- CombiSet 12 Inch Gas Cooktop Operating and Installation Instructions (44 pages)
- GAS KM 81-2 (44 pages)
- KM 92-2 (24 pages)
- KM89-2 (20 pages)
- KM 320 (20 pages)
- CS1028 (44 pages)
- KM 360 (16 pages)
- 24 Inch Electric Cooktop Operating and Installation Instructions (52 pages)
- KM412 (24 pages)
- CS1221 (48 pages)
- KM 87-2 (28 pages)
- CS1411 (36 pages)
- KM 5987 (60 pages)
- KM 452 (12 pages)
- KM 452 (32 pages)
- KM410 (16 pages)
- 36 Inch Stainless Steel Gas Cooktop Operating and Installation Manual (40 pages)
- KM 93-2 (28 pages)
- KM 443 (28 pages)
- 36 Inch Stainless Steel Gas Cooktop Operating and Installation Manual (40 pages)
- KM360G (20 pages)
- CS 1122 (40 pages)
- KM5947 (56 pages)
- CS1112 (40 pages)

