Generac Power Systems 0046262 User Manual
Page 23

Generac
®
Power Systems, Inc.
21
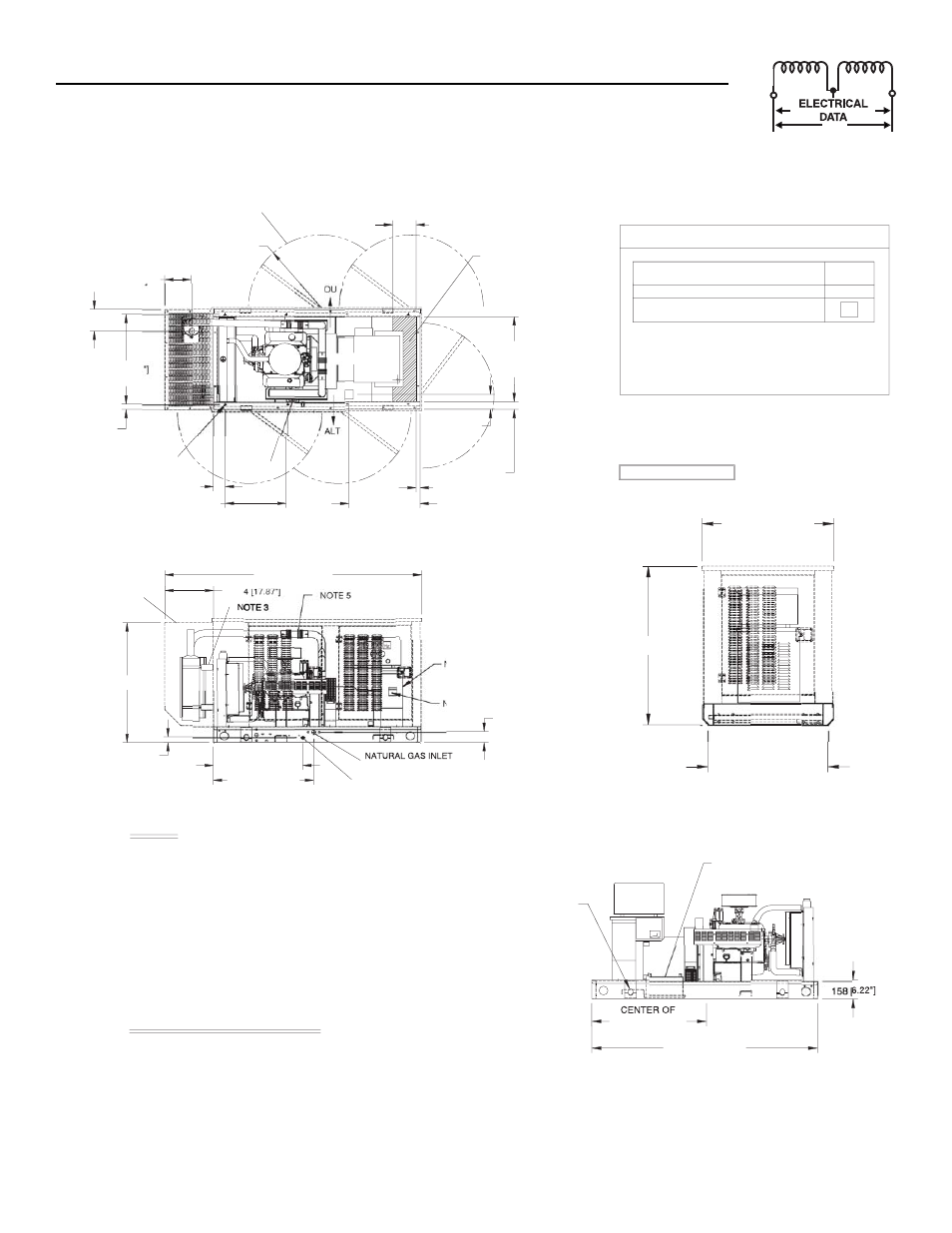
LEFT SIDE VIEW
TOP OR PLAN VIEW
OIL DRAIN
1/2" N.P.T. FEMALE
NOTE 6
NOTE 2
110 [4.33"] TYP.
570 [22.44"] TYP.
MOUNTING HOLES
Ш13.5 [Ш0.53"]
NOTE 7
STUB-UP AREA
SEE NOTE 8
AND CHART
839 [33.01
TYP
49 [1.92"]
TYP
8 HOLES ON BOTTOM
R677 [R26.66"]
TYP
2397 [94.37"]
37 [1.44"]
794 [31.28"]
STUB-UP
AREA
71 [2.79"]
835 [32.87"]
53 [2.09"]
MODIFICATIONS REQUIRED FOR
(SEE LEFT SIDE VIEW). SMALL FUEL SYSTEM
FUEL SYSTEM SET UP WITH OUTSIDE STUB UPS
STEEL COMPARTMENT: 208.6 kg [460 lbs]
INSIDE STUB-UP FOR
UNITS: mm [INCHES]
UNIT: 729.7 kg [1609 lbs]
INSIDE STUB-UPS.
FUEL CONNECTIONS
WEIGHT DATA
NOTE:
C
RECOMMENDED FUEL/ELECTRICAL STUB-UPS
(SEE TOP VIEW)
DESCRIPTION
AC LOAD LEAD CONDUIT
(LEFT)
BASE
A1
INSIDE
936 [36.85"]
103 [4.06"]
3/4" NPT FEMALE
NOTE 9
454 [17.87"]
A1
AIR
OUT
ALT
AIR
1117 [43.98"]
220 [8.65"] STUB-UP AREA
NOTE 1
204 [8.03"]
247 [9.73"]
C
665 [26.19"]
140 [5.50"]
TYP
BATTERY TRAY INSIDE DIMENSIONS: 178 X 342.5 [7" X 13.5"]
ENGINE AUTOMATIC START/STOP CONTROL WIRES PROVIDED IN
2. CONNECTION POINTS FOR AC LOAD LEADS, TRANSFER SWITCH, AND
1. STANDARD BLOCK HEATER REQUIRES 120V AC CONNECTION
4. 12 VOLT NEGATIVE GROUND SYSTEM
EXHAUST OUTLET -
ENGINE SERVICE CONNECTIONS
OIL DRAIN = 1/2" NPT COUPLING
INLET NATURAL GAS = 3/4" NPT COUPLING
7. DOORS MUST BE OPENED 90 DEG. TO BE REMOVED.
8. A1 MAY BE USED
FOR CIRCUIT BREAKER STUB-UP LOCATION.
6. MAIN LINE CIRCUIT BREAKER.
5. 2.5" I.D. FLEX EXHAUST
3. EXHAUST MUFFLER SUPPORT BRACKETS SUPPLIED WITH OPTIONAL COMPARTMENT.
NOTES:
2.5" OD MUFFLER OUTLET
9. SEE DRAWING C3850 FOR DUCT REMOVAL. REMOVAL OF FRONT
DUCT WILL PROVIDE ACCESS TO MUFFLER FOR SERVICING.
AC CONNECTION PANEL.
1930 [75.98"]
SEE NOTE 4
(1) 12V BATTERY
RIGHT SIDE VIEW
LIFTING EYE
(4 PLACES)
GRAVITY
981 [38.62"]
REAR VIEW
1160 [45.67"]
965 [37.99"]
877 [34.51"]
Section 6 — Electrical Data
Guardian Liquid-cooled 40 kW Generator
Mounting Dimensions - Drawing No. 0D5335
