Interconnections, Qt036, Nexus™ control features – Generac Power Systems Generac Quitesource Series QT036 User Manual
Page 4: Liquid-cooled installation

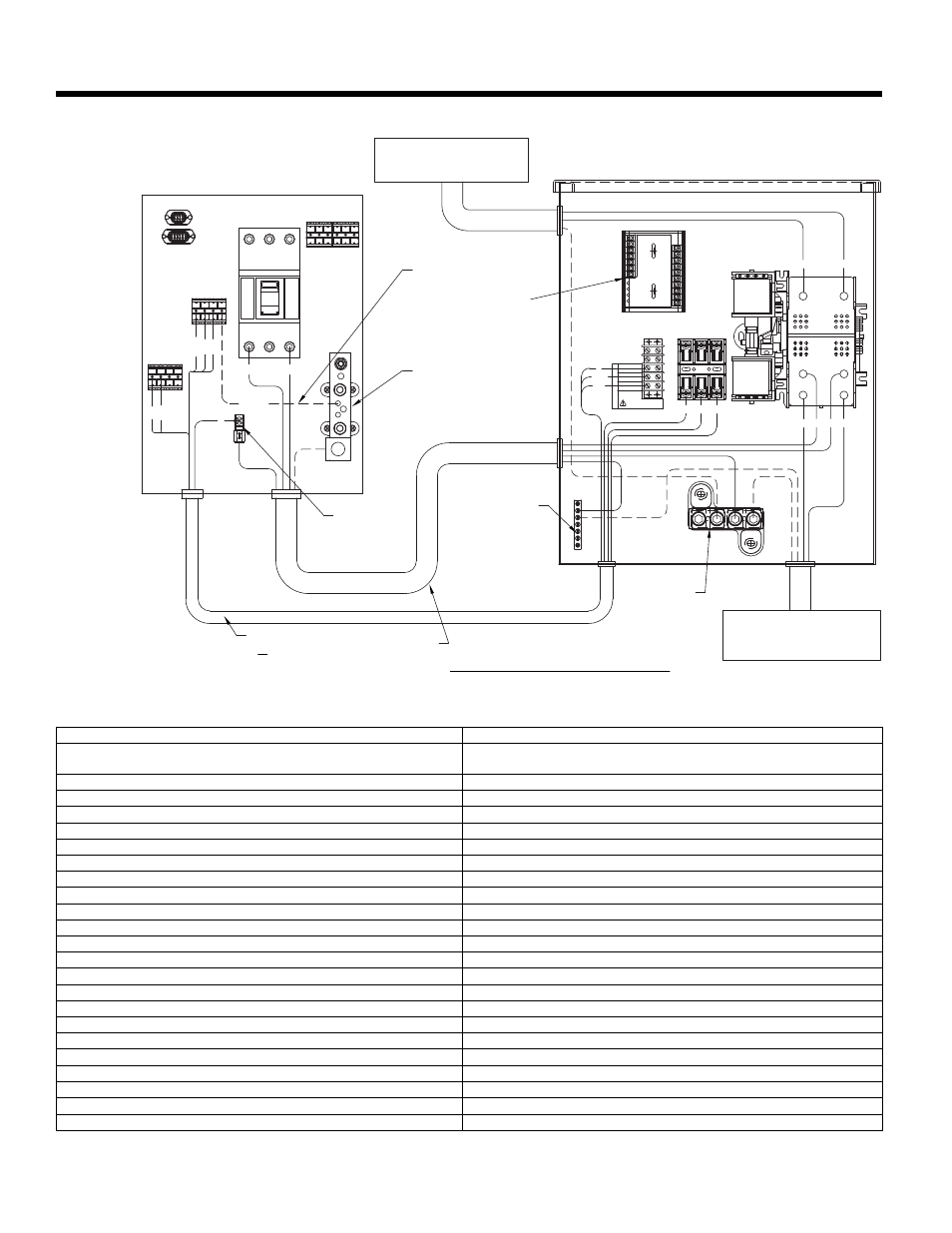
INTERCONNECTIONS
NEXUS™ CONTROL FEATURES
2-Line Plain Text LCD Display
Simple user interface for ease of operation
Mode Switch
-Auto
Automatic Start on Utility failure. 7 day exerciser
-Off
Stops unit. Power is removed. Control and charger still operate.
-Manual/Test (start)
Start with starter control, unit stays on. If utility fails, transfer to load takes place.
Programmable start delay between 10-30 seconds
Standard
Engine Start Sequence
Cyclic cranking: 16 sec. on, 7 rest (90 sec. maximum duration)
Engine Warm-up
5 seconds
Engine Cool-Down
1 minute
Starter Lock-out
Starter cannot re-engage until 5 sec. after engine has stopped.
Smart Battery Charger
Standard
Automatic Voltage Regulation with Over and Under Voltage Protection
Standard
Automatic Low Oil Pressure Shutdown
Standard
Overspeed Shutdown
Standard, 72Hz
High Temperature Shutdown
Standard
Overcrank Protection
Standard
Safety Fused
Standard
Failure to Transfer Protection
Standard
Low Battery Protection
Standard
50 Event Run Log
Standard
Future Set Capable Exerciser
Standard
Incorrect Wiring Protection
Standard
Internal Fault Protection
Standard
Common External Fault Capability
Standard
Governor Failure Protection
Standard
QT036
CUSTOMER SUPPLIED
NEUTRAL WIRE
LIQUID-COOLED INSTALLATION
NEUTRAL BLOCK
UTILITY SUPPLY FROM
SERVICE DISCONNECT
TO BE RUN IN TWO DIFFERENT CONDUITS.
POWER LEADS AND TRANSFER SWITCH LEADS
NOTE:
N1
N1
CONNECTION PANEL
QT SERIES ENGINE GENERATOR
23
194
TERMINAL NUMBERS
NUMBERS TO
MATCH WIRE
NOTE:
23
194
178
183
T1/LINE
ON
0
NEUT
T1
N2
E1
N2
NEU
E2
GROUND
0C4449A-T
(DISTRIBUTION PANEL)
CUSTOMER LOAD
NEUTRAL BLOCK
RTS TRANSFER SWITCH
UTILITY
STANDBY
(C1 & VR1)
(C2 & VR2)
0 GROUND
15B +12V
23 TRANSFER
AIR 1
AIR 2
PRIORITY 1
PRIORITY 2
PRIORITY 3
PRIORITY 4
T1
NEUTRAL
CONTACTOR
1
CONTACTOR
2
CONTACTOR
3
CONTACTOR
4
NOTE WIRE ORIENTATION
WARNING
TRANSFER
DC COMMON
CUST
OMER CONNECTIONS
23
0
194
+12VDC
GROUND
LOAD SHED
MODULE
194
23
0
T1
N1 N2
48850-T
E1
T1
E2 T2
T1
E1
N1
T2
E2
N2
N1
N2
*Single and three phase connections may vary, refer to the owner’s manual for specific connection information.