Group g, Wiring diagram, 8 kw home standby part 7, Wiring - diagram – Generac Power Systems 8 kW LP User Manual
Page 167

2
6
44
22
33
11
STATOR
ENGINE COMPARTMENT
CONTROL PANEL
1
5
2 3 4
7
6
8
11
9 10
12 13 14 15 16 17 18
J1
J2
MAIN
CONTROLLER
SP1
IM1
HTO
85
LOP
86
0
0
1
2
3
4
85
86
13
18
CHOKE
SOLENOID
RED
1
2
BLK
FRAME
GND
0
ENGINE
GND
0
18
10
10
10
10
N1
N2
1
2
N1 N2
6
6
PANEL GND
0
0
0
0
0
0
GROUND
+
BATTERY
TRANS SIG
0
15B
23
15B
23
0
14
0
N1
CUSTOMER SUPPLIED
BATTERY
12V
+ -
0
BLACK
13
RED
WARMER
BATTERY
FUEL
SOLENOID
GROUND
0
0
NEUTRA
L
22
33
14
14
0
0
CB
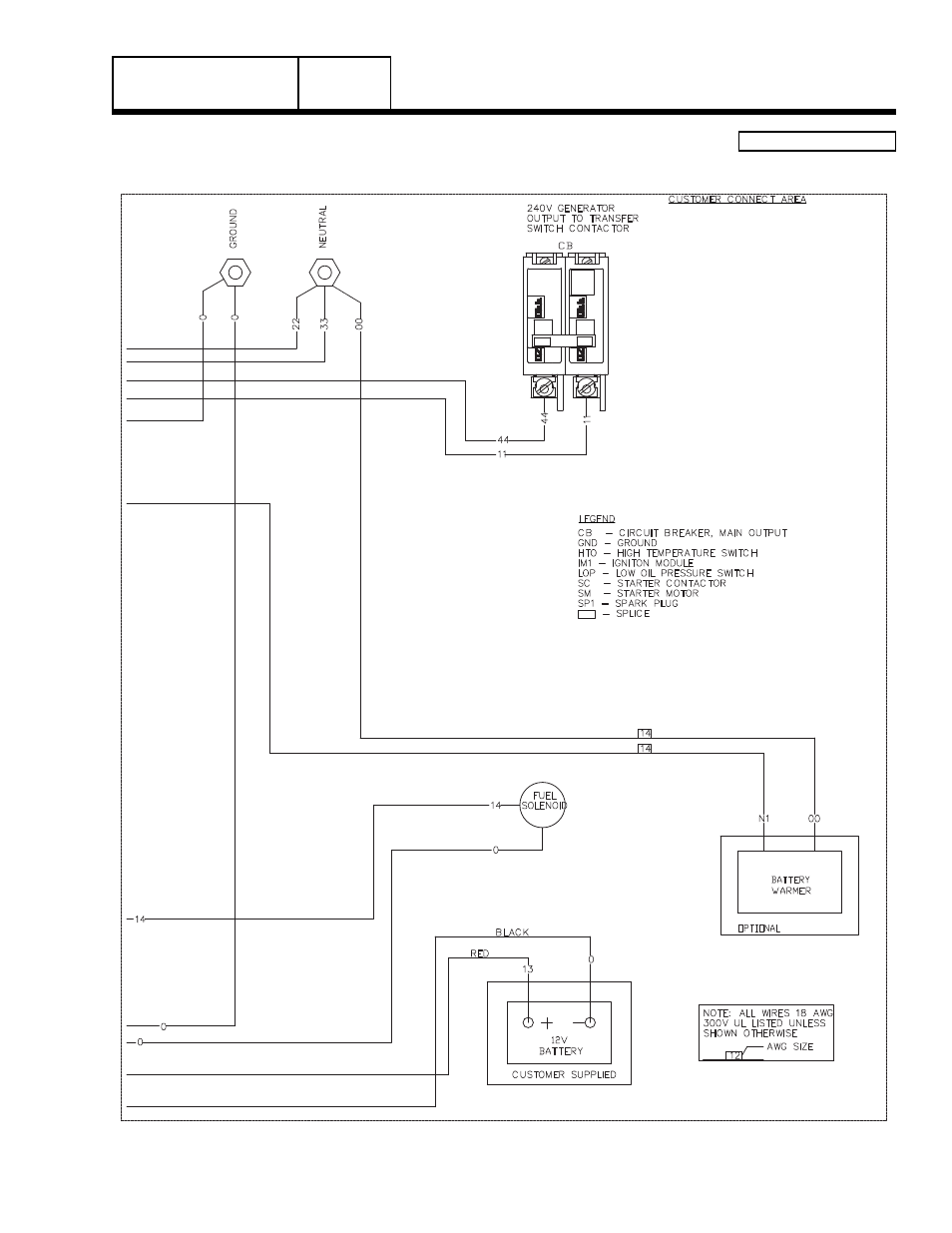
CUSTOMER CONNECT AREA
240V GENERATOR
OUTPUT TO TRANSFER
SWITCH CONTACTOR
44
44
11
11
N1
00
14
14
00
AWG SIZE
12
SHOWN OTHERWISE
300V UL LISTED UNLESS
NOTE: ALL WIRES 18 AWG
OPTIONAL
CAPACITOR
SC
SM
13
16
13
0
56
56
0
56
0
0
56
0
LEGEND
CB - CIRCUIT BREAKER, MAIN OUTPUT
GND - GROUND
HTO - HIGH TEMPERATURE SWITCH
IM1 - IGNITON MODULE
LOP - LOW OIL PRESSURE SWITCH
SC - STARTER CONTACTOR
SM - STARTER MOTOR
SP1 - SPARK PLUG
- SPLICE
GROUP G
WIRING - DIAGRAM
2008 AIR COOLED
DRAWING #: 0G7945
REVISION: -A-
DATE:
GROUP G
WIRING - DIAGRAM
2008 AIR COOLED
DRAWING #: 0G7945
REVISION: -A-
DATE:
ELECTRICAL DATA
WiriNG DiaGram, 8 KW HomE staNDBY
Part 7
Page 165
DraWiNG #0G7945
