Features and installation installation, How to install, Caution – Friedrich 230 Volts US10 User Manual
Page 12

12
Features
and
Installation
INSTALLATION
• Pick a location which will allow the conditioned air
to blow into the area you want. Good installation
with special attention to the proper position of the
unit will lessen the chance that service will be
needed.
ITEMS IN INSTALLATION HARDWARE
You may not need all parts in the kit. Discard
unused parts
HOW TO INSTALL
Before installing the unit, identify the existing
wall sleeve from the list below.
NOTE: All wall sleeves used to mount the new Air
Conditioner must be in sound structural condition
and have a rear grille that securely attaches to
sleeve, or rear flange that serves as a stop for the
Air Conditioner.
Remove old air conditioner from existing wall
sleeve.
Clean the interior of an existing sleeve.
(Do not disturb seals or gaskets.)
Wall sleeve must be securely fastened in wall
before installing the air conditioner. Use the
nails or screws through sleeve into wall, if
needed. Repaint sleeve if needed.
Prepare the wall sleeve for installation of the unit.
If you plan to use your existing wall sleeve, and it
is not FRIEDRICH, use procedure B or C below.
Install new unit into wall sleeve.
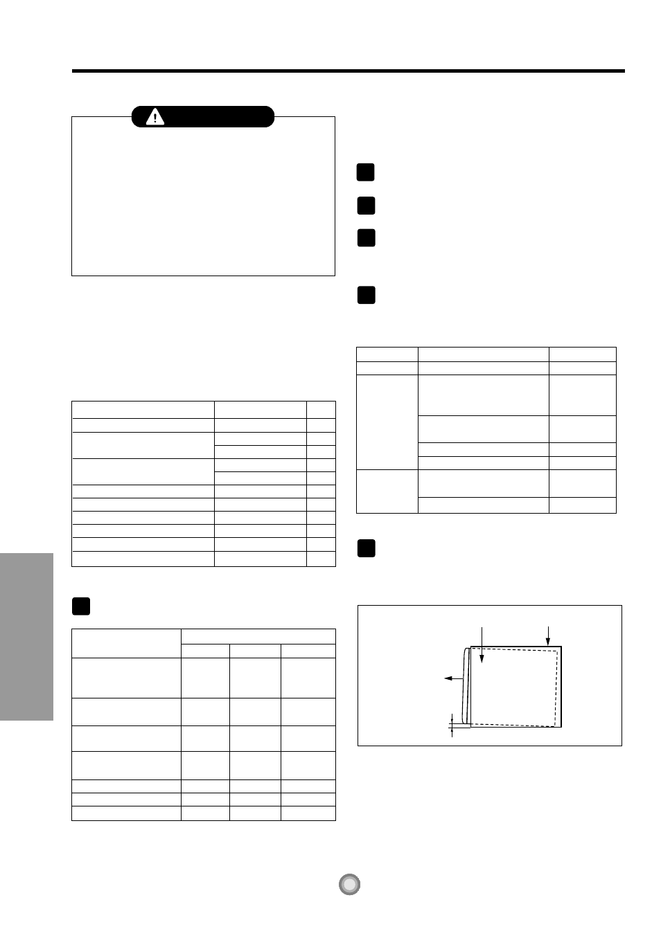
CAUTION: When installation is complete,
replacement unit MUST have a downward-rear
slope as shown below.
1
2
3
4
5
6
1/4"
Wall Sleeve
FRONT
UNIT
FIG. 3
We strongly recommend the removal of the
old wall sleeve and the installation of a new
FRIEDRICH USC Wall Sleeve.
If you decide to keep the existing wall sleeve, you
have to redirect the louvers at the back of the wall
sleeve illustration. The use of pliers is
recommended. If you DO NOT redirect, you run
the risk of poor performance or premature product
failure. This is not covered under the terms of the
FRIEDRICH warranty.
CAUTION
ITEM
DIMENSIONS(inches) Qty.
Plastic grille
26
3/4
x 16
1/2
1
Horizontal Insulation Strips 1
3/8
x
5/8
x 27
3/16
1
1
3/8
x 1
3/8
x 27
3/16
1
Around Insulation Strips
1
3/8
x
3/4
x 61
1/2
1
1
3/8
x 1
3/8
x 61
1/2
1
Support Block
1
3/4
x 1
3/8
x 4
5/16
2
Baffle
14 x 4
1/2
x
1/8
1
Shim
13 x 1 x
3/4
2
Trim Frame
2
Washer Screw
4
Nuts(Plastic)
4
Wall Sleeve Dimensions (inches)
Brand
Width
Height
Depth
White-Westinghouse
25-1/2
15-1/4
16, 17-1/2
Frigidaire
or 22
Carrier (52F series)
General Electric
26
15-5/8
16-7/8
/Hotpoint
Whirlpool
25-7/8
16-1/2
17-1/8
or 23
Fedders/Emerson
27
16-3/4
16-3/4
Friedrich WSC
or 19-3/4
FRIEDRICH USC
25-7/8 15-17/32 16-23/32
Emerson/Fedders
26-3/4
15-3/4
15
Carrier (51S Series)
25-3/4
16-7/8
18-5/8
Procedure
Brand
Depth(inches)
A(page 13)
FRIEDRICH USC
16-23/32
White-Westinghouse
Frigidaire Carrier
16, 17-1/2
(52F series)
or 22
General Electric
16-7/8
/Hotpoint
Whirlpool
17-1/8 or 23
Carrier (51S series)
18-5/8
Fedders/Emerson
16-3/4
Friedrich WSC
or 19-3/4
Emerson/Fedders
15
B
(pages 14~15)
C
(pages 16~17)
