Heatiator GDST3831I User Manual
Page 18

Heatilator • GDST3831I • 2127-900 Rev. L • 3/13
18
5
5
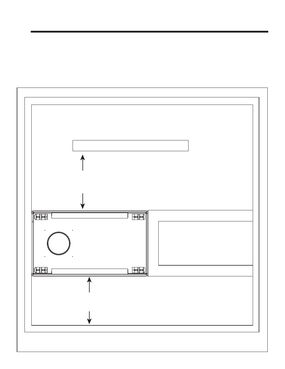
Framing and Clearances
A. Selecting Appliance Location
When selecting a location for the appliance it is important to
consider the required clearances to walls (see Figure 5.1).
WARNING! Risk of Fire or Burns! Provide adequate
clearance around air openings and for service access.
Due to high temperatures, the appliance should be locat-
ed out of traffi c and away from furniture and draperies.
NOTICE: Illustrations refl ect typical installations and are
FOR DESIGN PURPOSES ONLY. Illustrations/diagrams
are not drawn to scale. Actual installation may vary due to
individual design preference.
Figure 5.1 Appliance Locations
36 in.
914 mm
36 in.
914 mm
GDST3831I
NOTICE: This See-Through appliance is NOT designed
or approved for an indoor/outdoor application.
