Electrical data, W`6o\rzs`<]3zsqb`wq6sob, W`6o\rzs`eye3zsqb`wq6sob – Envision Peripherals IM1603 User Manual

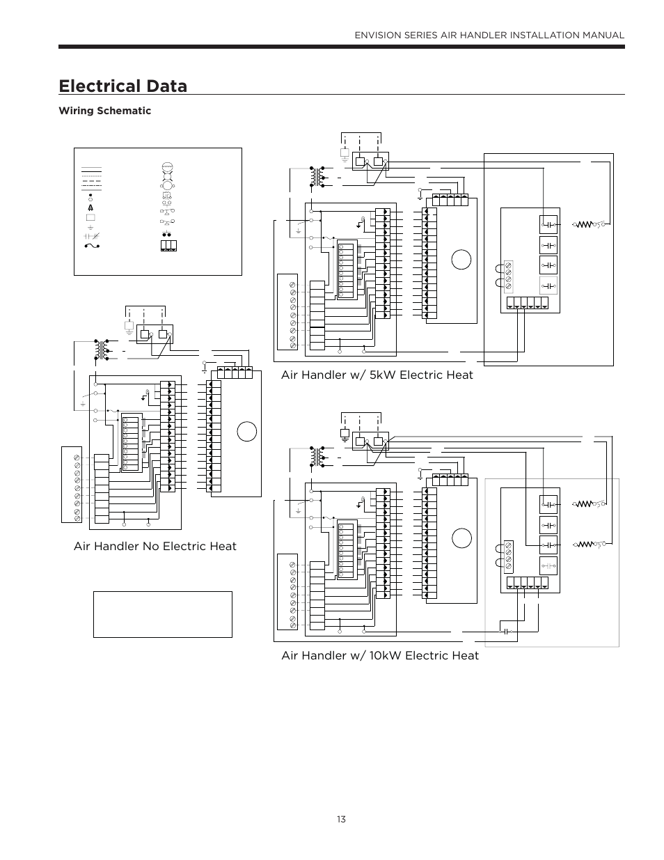
Page 14: W`6o\rzs`e#ye3zsqb`wq6sob, Wiring schematic, 13 envision series air handler installation manual, Legend

Electrical data, W`6o\rzs`<]3zsqb`wq6sob, W`6o\rzs`eye3zsqb`wq6sob | W`6o\rzs`e#ye3zsqb`wq6sob, Wiring schematic, 13 envision series air handler installation manual, Legend | Envision Peripherals IM1603 User Manual | Page 14 / 22 Electrical data, W`6o\rzs`<]3zsqb`wq6sob, W`6o\rzs`eye3zsqb`wq6sob | W`6o\rzs`e#ye3zsqb`wq6sob, Wiring schematic, 13 envision series air handler installation manual, Legend | Envision Peripherals IM1603 User Manual | Page 14 / 22