Sensor overview, Technical guide duct mounted e-bus co, Sensor technical guide 3 overview – Orion System OE256-07 Duct Mounted v.1 User Manual

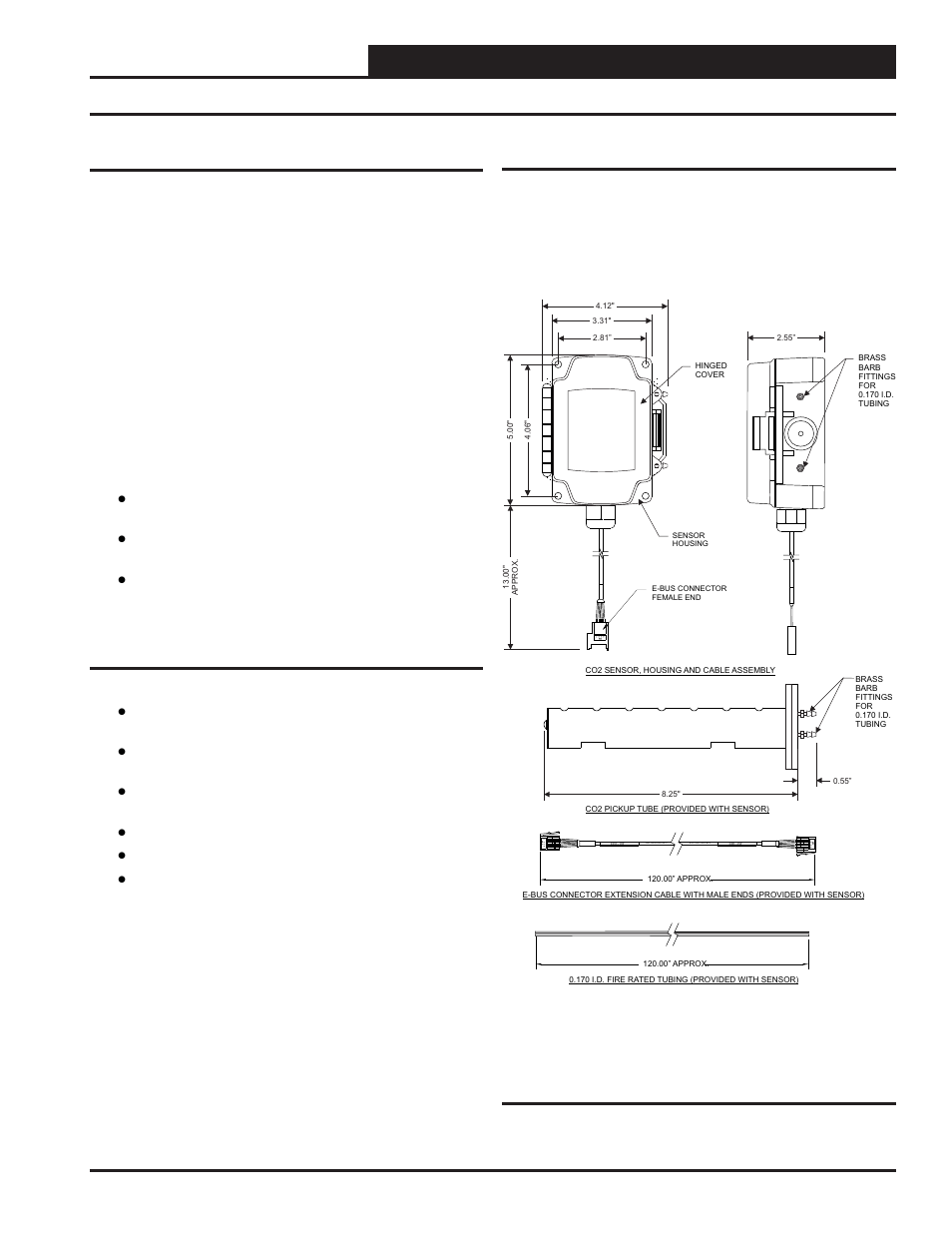
Page 3: Features, Environmental requirements, Figure 1: duct mounted e-bus co, Sensor with remote pickup tube dimensions

Sensor overview, Technical guide duct mounted e-bus co, Sensor technical guide 3 overview | Features, Environmental requirements, Figure 1: duct mounted e-bus co, Sensor with remote pickup tube dimensions | Orion System OE256-07 Duct Mounted v.1 User Manual | Page 3 / 8 Sensor overview, Technical guide duct mounted e-bus co, Sensor technical guide 3 overview | Features, Environmental requirements, Figure 1: duct mounted e-bus co, Sensor with remote pickup tube dimensions | Orion System OE256-07 Duct Mounted v.1 User Manual | Page 3 / 8